房子|5个小户型设计,1㎡能当10㎡用,看设计师如何玩转空间!( 二 )


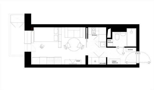
圆餐桌非常实用,有好友来时可以一起就餐闲聊。


在入户处还摆放了软凳,方便出行时换鞋,墙面设置挂钩,方便挂衣服及包包。
浅色系的厨房空间,柜内可以收纳厨房用具。
案例四,25㎡这间房子是短租公寓,25㎡的房子中包括有厨房,餐厅,利用层高再规划出了一个阁楼卧室,设计师为房子设计了许多巧妙的收纳设计。







案例五,15㎡这个15平方的房子与上面几个案例略有不同,这是一个位于乡下的农房,15㎡的小空间采用了清新原木风,与所处的环境更为融合,简而小的厨房,从墙面伸出的搁板是餐桌,阁楼上是睡眠区,上面开着天窗,躺在床上还可以看星星,颜色也显得异常温馨。


设计师将每一寸空间都利用到了极致,从颜色的搭配到功能布置,还有收纳性,许多细节中可以感受到,为屋主考虑得非常细心。充分利用了垂直空间,在墙面、角落及柜体上设置了许多可收纳的搁板,还有挂钩。

室内布置了许多绿植,桌面上的鲜花,窗户上垂吊下来的绿萝,都是满满的生命气息。


进门处摆放的布艺沙发,原木家具,具有当地特色的地毯与抱枕,这些都让人觉得温柔舒适,有暖意。

小小的厨房内,功能齐全,嵌入式冰箱,侧面也利用起来设有收纳篮。
推荐阅读
- 屋主|56㎡小户型老房改造,小而美的设计!
- 装修|乔迁新房3月以泪洗面!当初的不理智,连犯15个极品装修坑!作孽
- 心塞|5个月装修一套房,硬装让我喜出望外,结果家具一上全废了!心塞
- 小钱|游点好笑!收手机的新方式,一抓一个准!这老师怕是柯南看多了?
- 银行|请注意!今日起各地房贷利率普遍下降5个基点 业内预期:部分地区房贷利率或仍有下调空间
- 楼市|房子降价对楼市而言反倒是件好事
- 购房置业|经济学家:老百姓60%的钱花在房子上很危险!网友:说得很对
- 房贷|“重启”拆迁?这2类房子或全拆重建,两类人受到影响
- 客厅|参观向华强和陈岚的豪宅,房子层高太矮了,住着不压抑吗
- 大门|房子大门万万不能朝这地方开,师傅看了摇头,怪不得我家越住越穷
