房子|5个小户型设计,1㎡能当10㎡用,看设计师如何玩转空间!
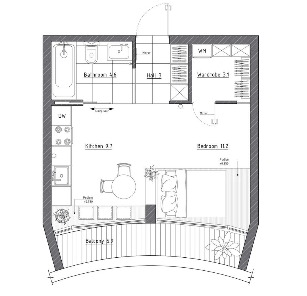
为了迎合广大年轻一族的生活需求,房地产公司推出了许多微小的户型,有些仅仅几十平方到十多平方,这些小房子结构紧凑,微小得不知该如何布置出日常必须用到的功能区,幸好我们有了设计师,让这种小空间得以让人生活得更为轻松合理,不管房子有多小,他们也有能力把它改造得非常实用。案例一,29㎡这个房子29平方,看设计师如何布局这个小空间,卧室带独立衣帽间,厨房餐厅,卫生间内还有位置放上一个浴缸。
平面图
灰白色的空间基调,地面采用自流平,一张绿色餐桌靠窗摆放,窗台设计成卡座,床头采用柜体分隔餐厅区,光线充足的空间显得特别大。

卧室定制的榻榻米床,床头的柜体台面可以放置书籍等小物件,睡前可随手拿来一本书阅读,床底下设计成抽屉储物。

入户门处的及顶鞋柜做悬空设计,下面暗藏有感应灯带,给主人夜晚进出时提供方便。

玻璃移门能保证卫生间内有自然光投入,靠内侧有一个浴缸,墙面与地面均是水磨石瓷砖。


案例二、13㎡房子是极限般小,只有13㎡,这么小的空间却有各种功能,工作、睡眠、厨卫、收纳,设计师每一寸空间都不放过,做到了极致。

在伦敦南部,一个小空间被改造成一个适用于工作与生活的微型公寓,室内用胶合板打造的家具全集中在房子的边角,基本上是一物多用。
嵌入柜体内的沙发,开放式厨房可以制作简单的烹饪,靠窗的餐桌,两人用可以瞬间变成四人位。
沙发旁边的储物搁板可以滑动拉出作为工作区,迎合现代站立式办公潮流。


到了晚上,只要将另一面壁柜的门打开,里面藏着一张大床,柜体内还设置了灯光,侧立面的缝隙处设计成柜子作为收纳。

案例三,25㎡25㎡夫妻两人住,设计师在这个空间中做了隔断,厨房采用滑动门,客厅与睡眠区用柜体分隔,这样就形成了一个相对独立的空间。
推荐阅读
- 屋主|56㎡小户型老房改造,小而美的设计!
- 装修|乔迁新房3月以泪洗面!当初的不理智,连犯15个极品装修坑!作孽
- 心塞|5个月装修一套房,硬装让我喜出望外,结果家具一上全废了!心塞
- 小钱|游点好笑!收手机的新方式,一抓一个准!这老师怕是柯南看多了?
- 银行|请注意!今日起各地房贷利率普遍下降5个基点 业内预期:部分地区房贷利率或仍有下调空间
- 楼市|房子降价对楼市而言反倒是件好事
- 购房置业|经济学家:老百姓60%的钱花在房子上很危险!网友:说得很对
- 房贷|“重启”拆迁?这2类房子或全拆重建,两类人受到影响
- 客厅|参观向华强和陈岚的豪宅,房子层高太矮了,住着不压抑吗
- 大门|房子大门万万不能朝这地方开,师傅看了摇头,怪不得我家越住越穷
