
主卧

主卧内布置同样简约清新,极简的家居配置让室内显得明亮通透宽敞。高箱实木大床搭配实木床头柜和清新的床品,营造出健康舒适安静轻松的休憩氛围。阳台规划一处工作区,配置;小书桌和桌椅,临时在卧室工作明亮安静又舒适。

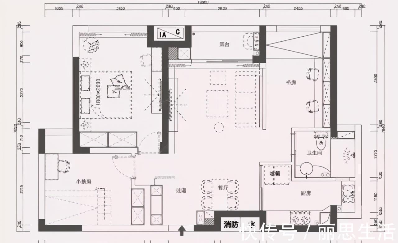
平米布置图
看完这对小夫妻两室巧改三居的小家,这样的空间布局和整体装修设计,不知是你喜欢的风格吗?
推荐阅读
- 屋主|56㎡小户型老房改造,小而美的设计!
- 春节|如果能重来,阳台一定“9不装”,并非迷信,是过来人的经验教训
- 装修|乔迁新房3月以泪洗面!当初的不理智,连犯15个极品装修坑!作孽
- 现代风|168㎡现代风,带着浓郁的归属感与愉悦感
- 深色|155㎡简约风,承载着三代人的生活,不花哨让家务少一半
- 混淆感|146㎡北欧经典白色三居室,诠释令人心醉的优雅
- 造纸|生活用纸,黄卫生纸真的好于白色卫生纸吗?来听造纸员工怎么说!
- 对象|廉租房和公租房的有什么区别?
- 饱和度|173㎡轻奢新中式,古典和现代的碰撞,唯美浪漫!
- 小钱|游点好笑!收手机的新方式,一抓一个准!这老师怕是柯南看多了?
