一个三代同堂的大家庭,不同的年龄层次,对应着不同的生活诉求。老人的环境要温馨安逸,生活动线要简单高效;屋主夫妻俩要有衣帽间,独立卫生间可是少不了;孩子也需要属于自己的小天地,学习玩耍两相宜;那该如何设计呢?不妨参考一下这套155㎡四房两厅的装修案例。

业主诉求
1、在进门处增加玄关储物柜,让玄关空间利用率更高;
2、打造中式厨房和西式厨房,满足不同的烹饪需求;
3、合理地利用卫生间的空间,对卫生间进行干湿分离;
4、为主卧增加一个衣帽间,打造主卧+衣帽间+主卫的组合空间。

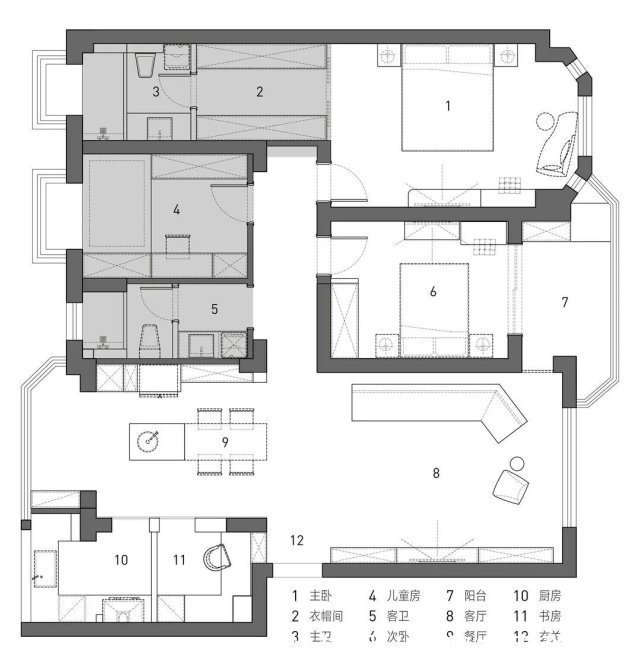
装修布置图
● 设计说明
1、减薄墙壁,打造嵌入式玄关储物柜,把大面积的完整墙面留给电视背景墙。
2、重新分割封闭式厨房,分成活动室和多功能房,利用餐厅空间打造西厨餐厅;
3、敲除洗手间墙面,利用过道空间,将洗衣机干衣机和浴室柜台盆设置在这里;
4、重构与主卧相连的两个空间的划分,让衣帽间和主卫的面积位置更加合理。

玄关设计
入户门紧挨电视背景墙,这给玄关储物设置了难题。还好在入户门的另一侧有一堵窄墙,为玄关储物柜提供了宝贵的空间。设计了一组嵌入式储物鞋柜,以保证玄关日常收纳。


客厅设计
客餐厅是空间设计核心,客厅与开放式餐厨空间相连,成为了一体化的超大空间。无主灯的设计让客厅更为整洁大气。取消了茶几的布置,让空间更显宽敞。


取消复杂电视墙设计,直接定制电视柜,柜门采用纯白门板+玻璃门板的组合,木质的温和玻璃的通透,是不同材质在同一柜体上的“偶遇”。


担心纯白墙面太过素净,而一段原木饰面板则调和这种单调,通过主卧阳台的隐形门也藏匿其中。四人位沙发,搭配一旁的棕色单人沙发椅,胜任家庭小聚会不在话下。

餐厅设计
餐厅是一个家非常重要的组成部分,核心的功能是就餐和餐厅收纳。餐厅的完整墙面作为餐边储物柜的空间,地柜吊柜形成的台面空间,可以容纳小厨电,轻松变身水吧台。而高柜除了储物也能容纳冰箱和嵌入式电器。

中岛+餐桌的组合形式,可以承担一部分西厨的功能。餐桌实木桌面呼应了全屋风格,皮革餐椅质感很棒和整体很搭。餐厅墙面采用原木饰面板装饰,同时藏着通往封中式厨房、以及通往活动室的隐形门

厨房设计
中西双厨的设计,兼顾了重油烟烹饪和开放式餐厨空间的优势,地面和地柜采用深色地砖和仿岩板材质,更显质感;台面墙壁和吊柜整体纯白,减少视觉压力,同时让层次感更明朗。
推荐阅读
- 屋主|56㎡小户型老房改造,小而美的设计!
- 现代风|168㎡现代风,带着浓郁的归属感与愉悦感
- 混淆感|146㎡北欧经典白色三居室,诠释令人心醉的优雅
- 饱和度|173㎡轻奢新中式,古典和现代的碰撞,唯美浪漫!
- 背景墙|97㎡现代风,以时尚打造空间,以新颖突出特点
- 地板|160㎡四居室,玄关比我家卧室都大,这才是真正的低调奢华有内涵
- 棚户区改造|开盘预告|合肥又有6盘要加推,均价1.39-2.54万/㎡全都有
- 小房间|参观140㎡大婚房,朋友都夸餐边柜有档次,我却更喜欢主卧的飘窗
- |73㎡复古风两居室,年轻夫妻的高品质生活
- 敏华控股|定制快讯|敏华墨西哥购置33.9万㎡土地建厂
