走廊|这是我见过最干净的家,将卧室悬空,完工堪比多间房,太实用了!
随着城市的发展,可以发现一个显而易见的事实,那就是可供孩子嬉戏的地方变得越来越少,如果是以前,在农村,左邻右舍大家相互熟络,可以玩泥巴、跳皮筋、丢沙包等等,但现在的商品房几乎像一个个塞进楼栋里面的集装箱,每天下班回到家可能连你对门的邻居是谁都不知道,为了让孩子不至于产生孤独感,很多家庭的装修开始愈发注重亲子间的互动和玩乐,比如本案业主位于台北的家就是如此,为了孩子,他巧用“悬空术”将卧室床直接悬空,如此不仅实用倍增,而且完工堪比多间房,真的太聪明了,就忍不住晒晒以期供有需要的朋友做个参考。
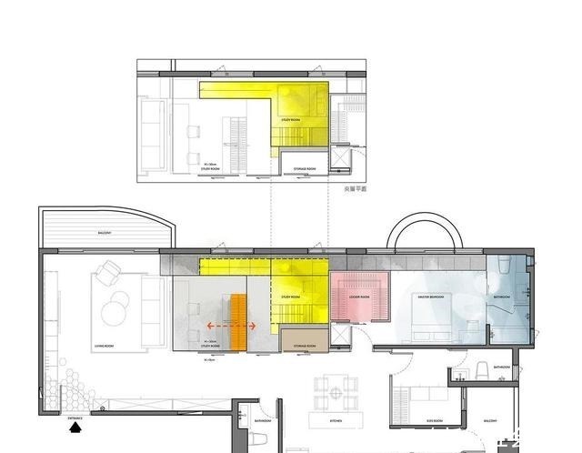
这是房子的平面图,户型为基本的两室两厅。
对面可以看到防盗门,由于没有独立的玄关,就沿着走廊定制了一面柜子一直延伸到另一端,好处在于利用率足够高,右侧的话靠近电视墙,设有一面穿衣镜,加上悬空结构的电视柜可以充当为换鞋凳,功能很强大。
换个角度大家看电视墙的左侧就明白了。至于电视墙本身,以干净利落的灰色立面为主看着很舒服。另外悬空结构的电视柜还有一大好处,那就是不留清洁死角。
需要补充的是右侧的柜子预留了一个缺口作为开放式的收纳区,放些诸如钥匙之类的小物件正好。

沙发后面是儿童房,为了提高利用率以及给孩子一个自由嬉戏的空间,业主就巧用悬空术将卧室床吊起悬空,如此相当于两层空间,上层睡觉休息,下层学习办公,所以说完工堪比多间房一点也不为过。
除了这些,业主可谓将“悬空术”发挥到了极致,除了之前提到过的电视柜以及卧室床,还有就是悬空结构的楼梯以及对面的书桌等等,这些不仅可以让整个空间显得通透灵活,而且看着非常漂亮。
至于嬉戏的地方,业主利用悬空的卧室床和地面的高度差做了一个滑梯,直接滑到客厅的沙发附近,可以说这样的家哪怕装修得不豪华,但充满创意的点子以及富有人文关怀的设计都是值得点赞的,在这里,它无疑可以让家的感情得到无限升温。


经过一番改造,沙发后面显然还有一定的富余空间,于是业主在这同样设置了悬空结构的书桌以及置物隔板等等,如此无论大人还是小孩的工作区全都有了。


推荐阅读
- 施工者|不管家多大,装修时做好这12处细节,美观与舒适并存,幸福感提升
- 大悦城|家里这两个地方别漏了贴瓷砖,许多人为了省钱,入住就后悔了
- 贷款|5月起,“2道铁令”,今后这1种买房方式再也行不通了
- 灰尘|家中阳台不要装推拉门了,装这种更实用个性,不得不感叹太聪明了
- 管道|为什么说:再穷也不买二层?了解这些弊端之后,就知道多糟心了!
- 小钱|游点好笑!收手机的新方式,一抓一个准!这老师怕是柯南看多了?
- 餐边柜要做成什么样子才实用又好看看看这几款餐边柜设计
- 集体经济|征拆赔款找,查了才知有这么“多”…
- 房贷|“重启”拆迁?这2类房子或全拆重建,两类人受到影响
- 万科|首付745万的房没了还要赔500万!买二手房签合同时注意这8个细节
