大海|把大海的纯粹带进家里,打造现代四居室,享受绝佳美景
把大海的纯粹带进家里,打造现代四居室,享受绝佳美景
生活除了柴米油盐也该有着独特的情趣和浪漫,就像是平凡大海中的一滴水,虽然渺小但是从来不失本性。该案例的业主就是这样一个人,爱好文艺对美有着自己的理解,喜欢简约但是不失个性的设计风格,在每一个空间中都有自己的故事情节。温度和热度都随之发生改变,那是生命的活力和浪漫。
装修预算:
50万
所在城市:
广州
设计师:
李文伟
主要建材:
木皮、大理石、壁纸、木地板、系统柜、灰玻、喷砂玻
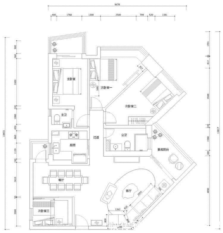
【户型图】
房屋户型比较规整,原有的3间卧室面积相对比较小,业主希望能够格外再增加卧室满足多人居住的需求。设计师重新规划空间布局,缩小不必要的活动空间,增加卧室的空间,同时增设大面积的储物空间满足实用功能。
扩大一家人的休闲区,满足日常招待亲朋的实用需求。在整体保证协调一致又兼具独特美感。
【客厅】
设计重点:客厅变身多功能娱乐区
客厅本身用来招待朋友或者家人在这里共同休息,所以设计师在改造客厅的时候优先侧重客厅的实用功能。巧妙利用空间布局增设大幕投影,客厅就变成了影音室,在家也能看大片。

而客厅的软装以温馨简约为主,蓝白相间的沙发和茶几,十分清新典雅,白天阳光照射进来让空间更加温柔和明亮,夜晚打开投影这里就是一个宽敞的私人影院。
【厨房】
设计重点:U型橱柜打造大容量储物空间
厨房改造之后三面都增加了橱柜和吊柜,满足业主日常的储物需求,也让厨房空间变得更加干净整洁。保留的小窗可以满足厨房的采光需求。厨房整体更加温馨也充满了烟火气,让每一餐的烹饪都充满乐趣。
【餐厅】
设计重点:营造清新氛围感
餐厅的面积比较宽敞,因为业主平时也比较喜欢招待朋友,所以餐厅选用的桌椅可以容纳十人左右同时就餐,独立的空间布局避免被打扰。
餐厅依旧延续蓝白色的主色调,整体十分的整洁和干净,而且营造出浪漫清新的氛围感。虽然没有陈设其他的家具或者华丽的装饰,但是餐厅足以让人感受到浓浓的舒适感和家的温馨感。
【卫生间】
设计重点:干湿分离
卫生间保留了原始的空间布局进行了重新的优化,首先确保了干湿分离减少卫生问题。其次利用玻璃移门划分出独立的淋浴区和洗漱区,这样可以避免同时使用卫生间的尴尬。
【卧室】

设计重点:独享窗外美景
卧室是整个改造中的重点,每一间卧室都以简约大方为主,在保证实用性的基础上打造美观舒适的休息区。
推荐阅读
- 屋主|56㎡小户型老房改造,小而美的设计!
- 春节|如果能重来,阳台一定“9不装”,并非迷信,是过来人的经验教训
- 装修|乔迁新房3月以泪洗面!当初的不理智,连犯15个极品装修坑!作孽
- 现代风|168㎡现代风,带着浓郁的归属感与愉悦感
- 深色|155㎡简约风,承载着三代人的生活,不花哨让家务少一半
- 混淆感|146㎡北欧经典白色三居室,诠释令人心醉的优雅
- 造纸|生活用纸,黄卫生纸真的好于白色卫生纸吗?来听造纸员工怎么说!
- 对象|廉租房和公租房的有什么区别?
- 饱和度|173㎡轻奢新中式,古典和现代的碰撞,唯美浪漫!
- 小钱|游点好笑!收手机的新方式,一抓一个准!这老师怕是柯南看多了?
