效果图|农村双拼兄弟房别墅设计图纸,推荐三款,兄弟姐妹都可以建( 二 )
别墅二层户型图展示
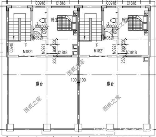
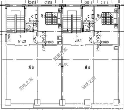
别墅三层户型图展示
设计功能:
一层:入口玄关、客厅、餐厅、厨房、卧室、卫生间;
二层:客厅、卧室x4、卫生间、露台、阳台;
三层:卧室、卫生间、露台;
看完了小编介绍的这几款双拼别墅设计图纸,家里有兄弟姐妹的还不赶快安排起来。
推荐阅读
- 建房子|面宽11米, 进深16.5米的农村三层别墅, 前后有花院还带车库, 完美!
- 别墅|参观亲戚上海的豪宅,别墅硬是住成农村房,真是糟蹋了好房子
- 购房置业|今年起,农村老家的老房子,统统按照“新规”处理,子女提前知晓
- 修建|精选10套三层户型图纸,占地面积均不足百平,尤其适合新农村修建
- 上海市|2022年农村人要“享福了”?实行按户补贴,跟村民们的房子有关
- 洗衣房|这三款农村四合院设计图让不少城里人羡慕,父母看了也欢喜
- 购房置业|农村建新房就选这套四层别墅,占地100多平,8间卧室人人都有地睡
- 别墅|土豪农村盖大别墅,人人羡慕,如今却成为全村人眼中的大笑料
- 李沧|农村建房不能超过几层?面积是怎么规定的?农村建房的流程及条件一览
- 露台|推荐5款三层别墅设计图纸,最适合农村建的房子
