效果图|农村双拼兄弟房别墅设计图纸,推荐三款,兄弟姐妹都可以建
双拼别墅在村里可能不常见,但是建一栋双拼别墅的好处是很明显的,双拼别墅不仅外观大气,对称设计,在功能上边也不落后,它跟普通别墅是一样的,两家虽然是隔开生活的,但是也可以互相照应,生活得更加亲近,今天小编给大家推荐几款农村双拼别墅设计图纸,不仅兄弟能建,姐妹也可建,是农村兄弟姐妹建房的首选。
第一款:堂屋公用的三层双拼别墅设计图
堂屋共用的三层双拼别墅设计图,堂屋是农村生活习俗的重要传承,但是房子建个堂屋,平常没有用处也比较浪费,这款两家共用一个堂屋,既节省空间可以他用,也保留了生活的传承,一举两得。
别墅效果图展示
占地面积:19.2m*13.04m,245平方米左右,单户122.5平左右;
建筑层高:三层;
建筑高度:13.8米(含屋顶);
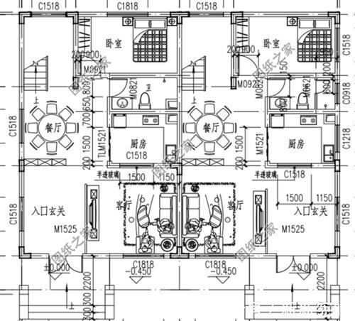
别墅一层户型图展示
【 效果图|农村双拼兄弟房别墅设计图纸,推荐三款,兄弟姐妹都可以建】
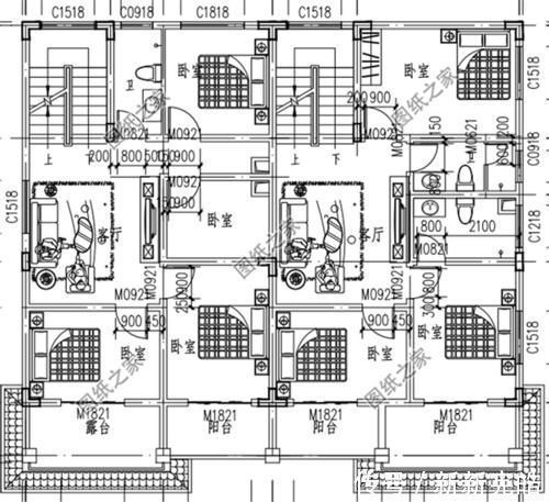
别墅二层户型图展示
别墅三层户型图展示
设计功能:
一层:中堂、厨房、餐厅、多功能娱乐室、卧室×4、卫生间×2;
二层:大厅、厨房、餐厅、卧室×3、卫生间;
三层:客厅、厨房、餐厅、卧室×2、卫生间、大露台(共用);
第二款:经典三层双拼房屋设计图
经典 三层双拼房屋设计图,带效果图,户型好,单户面积120平米左右,宅基地小也能建出气派的房子。外墙用的配色都是比较能看出贵气的,大门的门楼很重要,气派性一下子就突显出来了。
别墅效果图展示
占地面积:18.0m*13.5m,240平方米左右,单户120平左右;
建筑层高:三层;
建筑高度:13.36米(含屋顶);
别墅一层户型图展示
别墅二层户型图展示
别墅三层户型图展示
设计功能:
一层:玄关、客厅、餐厅、厨房、卧室、卫生间;
二层:起居室、卧室×3、卫生间、阳台;
三层:卧室×3、卫生间、露台;
第三款:农村三层兄弟双拼别墅设计图及效果图片
农村三层兄弟双拼别墅设计图效果图,设有阳台、露台,空间利用率极高,而且造型美观,整体为欧式风格,总设计为三层,外立面选择暖黄色外墙砖,与红色的坡屋顶结合,整体配色有浓有淡。
别墅效果图展示
占地面积:14m*12.2m,154平方米左右,单户77平左右;
建筑层高:三层;
建筑高度:12米(含屋顶);
别墅一层户型图展示
推荐阅读
- 建房子|面宽11米, 进深16.5米的农村三层别墅, 前后有花院还带车库, 完美!
- 别墅|参观亲戚上海的豪宅,别墅硬是住成农村房,真是糟蹋了好房子
- 购房置业|今年起,农村老家的老房子,统统按照“新规”处理,子女提前知晓
- 修建|精选10套三层户型图纸,占地面积均不足百平,尤其适合新农村修建
- 上海市|2022年农村人要“享福了”?实行按户补贴,跟村民们的房子有关
- 洗衣房|这三款农村四合院设计图让不少城里人羡慕,父母看了也欢喜
- 购房置业|农村建新房就选这套四层别墅,占地100多平,8间卧室人人都有地睡
- 别墅|土豪农村盖大别墅,人人羡慕,如今却成为全村人眼中的大笑料
- 李沧|农村建房不能超过几层?面积是怎么规定的?农村建房的流程及条件一览
- 露台|推荐5款三层别墅设计图纸,最适合农村建的房子
