虽然现在农村二层的小别墅随处可见,但是对于一些成员较多的家庭来讲,三层的房子更实用,而且造价也高不了多少。下面小编就给大家推荐几套三层别墅的设计图,建房干货满满,千万别错过!

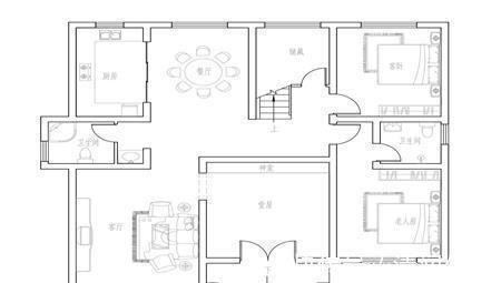
别墅风格:中式
占地面积:155㎡
预估造价:77万
别墅层数:三层
建筑占地:17.5m×8.9m
建筑面积:426㎡
建筑结构:砖混结构

新中式风格的三层带露台别墅,经典的黑色屋顶加白墙设计,每个窗口都单独设计窗檐,方便下雨天排水。

一层设有堂室、客厅、公共卫生间、厨房、餐厅、仓库等,格局方正,户型紧凑。

二层主要是休息空间,卧室分布合理,有独立的窗户。三层设置有三室两厅两卫,可满足家人日常休闲使用。

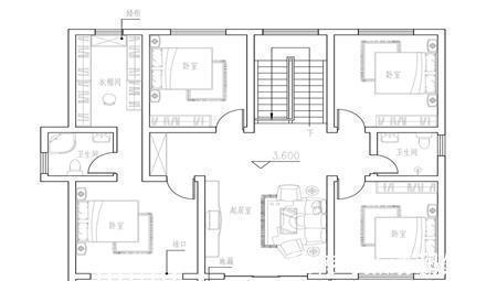
占地面积:131㎡
建筑占地:11.5m×11.4m
建筑面积:311㎡

建筑为新中式风格,造型简约,露台和开放式阳台使立面的层次感突出。

一层有公共功能空间,堂屋、茶室、餐厅、玄关等面积充足,开放式设计使空间整体更开阔。

二层增设客厅丰富建筑休闲功能,其余空间均为居住空间。三层西北侧增加露台,丰富了建筑的室外活动功能。

开间:12m
进深:11.7m
建筑面积:394㎡

建筑为简欧风格,一层入户位置为大面积的堂屋,老人房设计了私卫。

二层主要功能为日常居住,开阔的衣帽间充分满足了日常生活中的需要,使用非常方便。

三层相对偏向于娱乐休闲,空间比较宽敞,走廊和楼梯不会显得局促和拥挤。

别墅风格:欧式
建筑占地:13.7m×9.6m
建筑面积:347㎡

建筑整体偏向欧式风格,一层以棕色衬托二、三层的暖黄色,配合蓝色屋顶赋予建筑更多清新感。
推荐阅读
- 购房置业|上海女子拍下对楼住户家无敌露台,超大空间网友酸了:买房送操场
- 建筑|小开间农村自建房,5款开间10米的农村别墅户型,好看又实用!
- 交易|开发商送的大露台,沿墙砌20米长花池,种花种菜,不要还能拆掉!
- 海绵|新年新气象,装点美丽新生活!顾家卧室床推荐,建议收藏!
- 电视背景墙|这5款电视墙的设计,不仅拍照好看,还收获上万人关注,值得学习
- 衣帽间如何装修?设计师推荐5大黄金布局|小小屋装修网| u型
- 砖混|5款带院子的农村别墅,30年后,我想住在这样的房子里养老
- 好物|家装好物推荐:家里要不要安装电动窗帘,分享一下电动窗帘的使用经验
- 露台|占地130平,自建7室3厅农村别墅,新年住在这样的房子真的很幸福
- 露台|发现小户型简装真的很棒,房子越住越精致,越住越温馨
