墙体|90㎡两居室改造,从餐厅厨房挤出一间房,真心巧妙( 二 )

现在的厨房缺点就是没有连接户外的窗户了,所以和多出来的房间墙体中间,做了一个磨砂玻璃,保证自然光还是可以照射到厨房里。吊柜还装了灯带,操作起来也不怕有采光死角了。
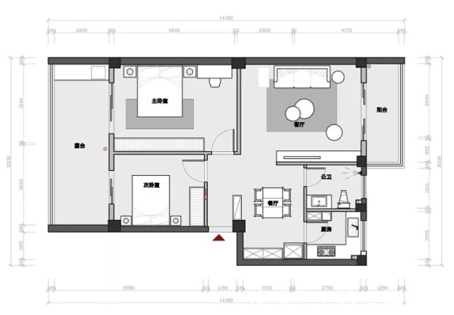
卫生间干区,内部就不展示了,细节可以在户型图看到。(文末会再上传一遍)

主卧通过改造后,多出了一个独立的衣帽间,就再床铺左侧,用半透明的黑灰色玻璃推拉门隔开。
右侧剩下的阳台打通,除了储物也兼备休闲。功能房
就是多出来的那个小房间,面积不大所以整体做了榻榻米箱床。
可以作为娱乐休闲的书房,还能作为杂物间用。重点是客人来了可以临时睡人,很方便。还有一个次卧因为没有提供图片所以就遗憾不展示了。次卧外面剩下的一半阳台就是洗衣晾晒的阳台了。(本案来自厦门屋主,设计木卫住宅studio)改造后连屋主自己都说,不知道为什么感觉房子变大了不少。说明这次改造确实还挺成功的,希望我的编辑和文字阐述可以让大家详细了解到改造的前后对比。最后再附上静态的原始户型图和改造设计图。

本案就分享到这里,最后总结。再怎么改造其实房子的原始面积是不变的,之所以看上去像房子变大了,是因为通过合理规划之后,空间配置更合理了,把需要用到的空间落到实处,有舍有得就是改造最成功的理念。希望这篇文章可以帮助到大家,喜欢的欢迎持续关注,我们一起学习装修知识,一起提升美学哦!
推荐阅读
- 屋主|56㎡小户型老房改造,小而美的设计!
- 现代风|168㎡现代风,带着浓郁的归属感与愉悦感
- 深色|155㎡简约风,承载着三代人的生活,不花哨让家务少一半
- 混淆感|146㎡北欧经典白色三居室,诠释令人心醉的优雅
- 饱和度|173㎡轻奢新中式,古典和现代的碰撞,唯美浪漫!
- 背景墙|97㎡现代风,以时尚打造空间,以新颖突出特点
- 地板|160㎡四居室,玄关比我家卧室都大,这才是真正的低调奢华有内涵
- 棚户区改造|开盘预告|合肥又有6盘要加推,均价1.39-2.54万/㎡全都有
- 小房间|参观140㎡大婚房,朋友都夸餐边柜有档次,我却更喜欢主卧的飘窗
- |73㎡复古风两居室,年轻夫妻的高品质生活
