墙体|90㎡两居室改造,从餐厅厨房挤出一间房,真心巧妙
90㎡的两居室改造,能有啥花样?设计师居然从餐厅和厨房挤出一间房,让房子变成三室一厅,完工后竟多出一间房,真心巧妙!连业主自己都说,房子变大了!(本案改造非常值得参考学习,不过遗憾就是实景图片全是太少了,为了让大家更好理解,小建会用文字详细阐述细节,希望关注我的各位宝宝们都能得到更多的装修灵感,得到提升)
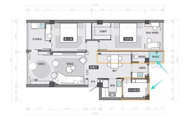
设计图前后对比坐标福建厦门,90㎡形容的是房子的套内面积,这套房子本身的建筑面积是118㎡,公摊不算大。之前的布局是标准的两室一厅,户型的优点在于有一个贯穿客厅和次卧的大阳台,主卧外面还有个小阳台采光特别棒。缺点就是面积不小,缺少一个房间,而且只有一个卫生间。改造亮点:当然是多出一间房啦,而且通过改造还扩大了卫生间的面积,达到了干湿分离的目的,大阳台一分为二,感觉家里凭空多出10㎡的面积。
整个装修是酷酷的现代风格,地面铺设中心灰色抛光石材,墙面一样采用高级灰。搭配客厅的黑色皮质沙发,圆形组合茶几以及灰调擦色地毯,呈现出干练鲜明对比的感觉。抽象挂画为客厅提供了些许跳色,搭配的恰到好处,活跃氛围的同时也不会破坏原有的硬朗格调。(风格上可能有些小众,笔者是非常喜欢所以就分享了,一些喜欢温馨的网友可能会不喜欢,也请不喜勿喷哈,取长补短即可)
客厅阳台打通后,同次卧的阳台分离隔开,包进客厅变成额外的休闲空间,靠墙装了一整拍到顶的玻璃收纳柜,可以存放书籍,屋主的一些收藏品等等。角落处的小房子其实是家里狗狗的小窝。
另一侧可以看到电视背景墙,一直延伸到左侧阳台墙面区,是有一排到顶的木色隐形收纳柜,没有购买成品的电视柜,而是选择用黑色的定制石材从右至左,悬挂式的嵌入柜子当中,有一种打破常规的设计,看起来非常的时尚。黑色的结构线条和爵士白的大理石背景墙形成对比,干练又轻奢。很上档次。
客梯厅小角落,超喜欢这种带有一点机械感工业风感觉的硬朗气息。
餐厅区这里是全屋改造最大的部分,也是整个房屋的亮点所在。之前这里只是一个普通的餐厅,旁边分别是卫生间和厨房的门洞。这次改造的目的是为了增加一个房间,所以适当牺牲了一些主卧的面积,把墙体拆掉后,左移。(左侧墙体)扩大餐厅面积后,原有的空间就在右侧第二个门洞处挤出了一个房间。
通过设计图来详细说明一下,墙体移动之后,不仅仅扩大了餐厅的面积,也扩大了卫生间的面积,借用主卧阳台一部分的面积,做好防水打造淋浴房,恰好本身阳台的位置就有下水管。这样一来干湿分离就完美分割了。而原来厨房的位置就改造成了一个独立的房间,左侧餐厅多出来的面积就打造成了厨房。这就是多出一间房的改造由来了。
那么餐厅区的收纳其实也是很强大的,新砌墙体之后,沿着墙体装了一整面墙的到顶隐形柜,为了不让柜子过于单调呆板中间做镂空,安装灯带,瞬间觉得好有层次感。看上去很极简,其实收纳很强大。
推荐阅读
- 屋主|56㎡小户型老房改造,小而美的设计!
- 现代风|168㎡现代风,带着浓郁的归属感与愉悦感
- 深色|155㎡简约风,承载着三代人的生活,不花哨让家务少一半
- 混淆感|146㎡北欧经典白色三居室,诠释令人心醉的优雅
- 饱和度|173㎡轻奢新中式,古典和现代的碰撞,唯美浪漫!
- 背景墙|97㎡现代风,以时尚打造空间,以新颖突出特点
- 地板|160㎡四居室,玄关比我家卧室都大,这才是真正的低调奢华有内涵
- 棚户区改造|开盘预告|合肥又有6盘要加推,均价1.39-2.54万/㎡全都有
- 小房间|参观140㎡大婚房,朋友都夸餐边柜有档次,我却更喜欢主卧的飘窗
- |73㎡复古风两居室,年轻夫妻的高品质生活
