榻榻米|我对家的期盼,都藏进这60㎡的小蜗居当中,面积不大功能却很齐全
山不在高有仙则名,水不在深有龙则灵。房子也不需要多大,只要一家人幸福生活在一起,温馨才是最重要的。毕竟现在的房价可以用寸土寸金来形容,买一套小户型。不仅购房压力小,而且装修费用也比较低。小空间,反而更有一种家的温馨感。
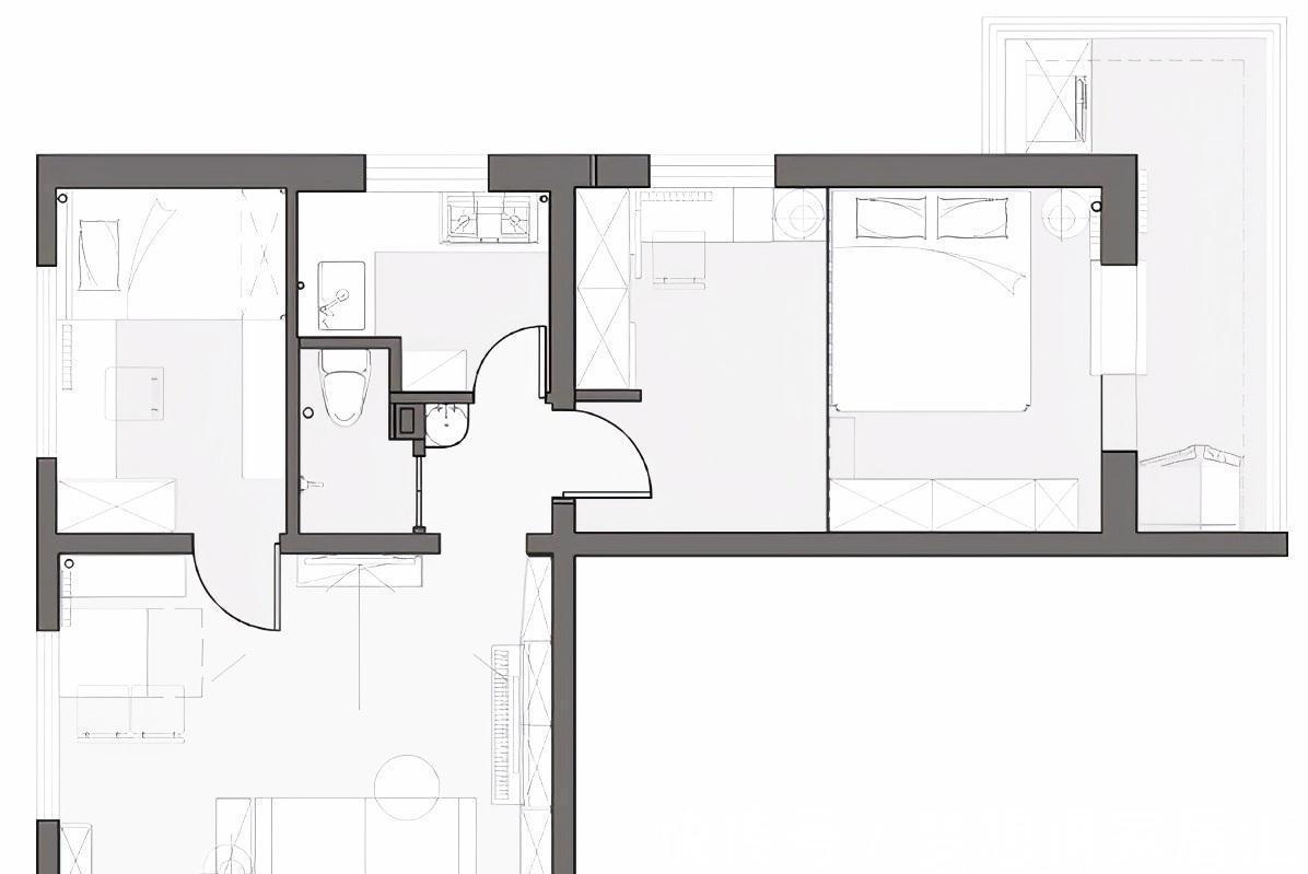
今天介绍一套位于北京的60㎡小户型,一家三口的幸福小窝。面积虽然不大,功能却非常齐全。从此告别了租房的日子,拥有了属于自己的一片小天地。这套小蜗居,藏进了我对家的期盼。实现了三口之家对未来生活的憧憬,即便是小户型,照样可以舒适又迷人。
原本一进门就只有一个客厅,为了挤出完善的功能区。在进门的左手边,定制了简单的鞋柜+衣帽墙。鞋柜只有40cm左右的高度,可以当做换鞋凳来使用。墙面安装了几个衣帽钩,用来收纳外套、 包包、帽子之类,还是非常方便的。
鞋柜的边上就是一套简单的餐桌椅,虽然空间很紧凑,但是一家人也有一个吃饭的地方。
【 榻榻米|我对家的期盼,都藏进这60㎡的小蜗居当中,面积不大功能却很齐全】从进门开始,全屋都是木地板,墙面以乳胶漆为主。天花板不做吊顶,采用当下很流行的无主灯设计。不仅省钱,还时尚好看,而且采光条件分布均匀。
原本只有一个小客厅,装修的时候,把整个客厅整合成玄关+客厅+餐厅+书房+琴房等多重功能。不仅功能效果扩大了好几倍,而且还强化了收纳效果。莫兰迪色系沙发、浅灰色的电视墙,搭配深灰色沙发床。简简单单的搭配,却很有层次感。
客厅的内部,利用垭口和墙面间隙的空间,定制了一整面墙的开放书架。不仅可以丰富客厅的视觉效果,还可以兼备不错的收纳功能。书架的中间位置预留了一个空挡,计划用来摆放钢琴。
厨房的面积比较紧凑,为了节省空间,采用集成灶。这样可以把油烟机、灶台、洗碗机融合在一起,多释放出一些使用空间。
灰色系的釉面瓷砖贴满了地板和墙壁,原木色柜门的橱柜和吊柜。虽然厨房的空间紧凑,然而视觉效果时尚清新,收纳功能也勉强够用了。
下面看到的是儿童房,相对主卧室来说,面积要紧凑一些。墙面同样不做造型,但是通过乳胶漆的颜色搭配,刷出了时尚个性的几何图案,很符合孩子的审美观。定制了一套双层儿童床,完美嵌入到房间里面。原木材质看着温馨舒适,下层还带有收纳功能,一点也不会比榻榻米来得差。
小户型最看重的就是收纳功能,所以主卧室虽然不算很紧凑,但是依然定制了榻榻米地台。底部是抽屉式收纳功能,床尾是整面墙的收纳衣柜。不仅整洁美观,还可以提供海量的收纳空间。榻榻米床再进去有一个阳台,采用半隔断模式。
推荐阅读
- 屋主|56㎡小户型老房改造,小而美的设计!
- 春节|如果能重来,阳台一定“9不装”,并非迷信,是过来人的经验教训
- 装修|乔迁新房3月以泪洗面!当初的不理智,连犯15个极品装修坑!作孽
- 现代风|168㎡现代风,带着浓郁的归属感与愉悦感
- 深色|155㎡简约风,承载着三代人的生活,不花哨让家务少一半
- 混淆感|146㎡北欧经典白色三居室,诠释令人心醉的优雅
- 造纸|生活用纸,黄卫生纸真的好于白色卫生纸吗?来听造纸员工怎么说!
- 对象|廉租房和公租房的有什么区别?
- 饱和度|173㎡轻奢新中式,古典和现代的碰撞,唯美浪漫!
- 小钱|游点好笑!收手机的新方式,一抓一个准!这老师怕是柯南看多了?
