月薪3000|这是我月薪3000该看的东西吗?

【 月薪3000|这是我月薪3000该看的东西吗?】
不怕同桌是学霸,就怕学霸过暑假。
朋友们好!是的没错,你们行走在吃瓜一线的小助理又来了。
暑假还没结束,石景山衙门口地块的长安悦玺就实现了一波“弯道超车”,仅用99天的时间就拿下了预售许可证!估摸着开盘就是月底的事儿了~
话说5月土拍的30宗地,真的是太卷了!截至目前,大概有20宗地块公布了案名,七八个项目设置了临时展厅接待客户。
名字是真的好像啊
能想象到,下半年的北京楼市又是一场恶战。
先来看看项目的基本信息。
长安悦玺
地块位置:北京市石景山区衙门口棚户区改造土地开发项目1615-708地块二类居住用地
销售指导价:79500元/平米
容积率:2.8
交付标准:精装(以实际为准)
从案名可以看出,长安悦玺和长安和玺是妥妥的亲姐妹,不过在产品上略有差别。
最直观的体现,面积段更全面。
一共有917套房源,面积从97㎡三居到173㎡四居不等,总价在770万-1370万左右。
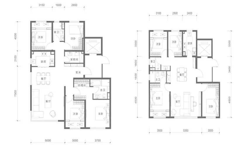
小助理从网上找了张户型分布表,大家可以先在心里存个底儿~
三居的户型只有97㎡、104㎡两种。两个户型差别不大,都是南向三面宽,户型方正,结构紧凑。
97㎡户型(左)VS104㎡户型(右)
不过有一点需要注意,两个三居户型都有连廊。介意的朋友要慎重了。124平和122平的四居长相也是高度相似。
124㎡户型(左)VS122㎡户型(右)
相对来说,小助理更喜欢124平的户型。南北通透,格局方正,经典的四叶草户型,四间卧室分布于房间角,互不打扰。餐客厨LDK一体化设计,利用率很高,整体的空间感很强。唯一有点遗憾的是进门需要经过两个卧室,私密性会受到一丢丢影响。放几张样板间照片大家感受一下~


152平米的户型就很改善了,千万预算选手可以考虑。
三面宽加上6.5米的大宽厅,还是挺难得的。不过,厨房面积看起来有点憋屈,客卫没有窗户,采光透风都得打个问号。138平和173平户型的套数都不多,就不展开说了。
173㎡户型(左)VS138㎡户型(右)
地段的稀缺是长安悦玺最大的亮点,在石景山的衙门口,归属于城六区,环线上在西五环内。
但地块周边现状比较一般,好在到鲁谷近,能直接享受鲁谷内部现有的配套。
距项目最近的医院为北京燕都中西结合医院,约500m左右;周边大型商业为北侧2公里左右的石景山万达广场。
不过缺点也很扎心——没地铁。最近的地铁站,1号线八宝山站,到项目约2.7公里。
推荐阅读
- 施工者|不管家多大,装修时做好这12处细节,美观与舒适并存,幸福感提升
- 大悦城|家里这两个地方别漏了贴瓷砖,许多人为了省钱,入住就后悔了
- 贷款|5月起,“2道铁令”,今后这1种买房方式再也行不通了
- 灰尘|家中阳台不要装推拉门了,装这种更实用个性,不得不感叹太聪明了
- 管道|为什么说:再穷也不买二层?了解这些弊端之后,就知道多糟心了!
- 小钱|游点好笑!收手机的新方式,一抓一个准!这老师怕是柯南看多了?
- 餐边柜要做成什么样子才实用又好看看看这几款餐边柜设计
- 集体经济|征拆赔款找,查了才知有这么“多”…
- 房贷|“重启”拆迁?这2类房子或全拆重建,两类人受到影响
- 万科|首付745万的房没了还要赔500万!买二手房签合同时注意这8个细节
