客厅|她家的客厅不一样,用卡座取代沙发,好看又实用,真是小户型救星
要说在一个舒适的客厅里,什么家具最重要,我想必定是沙发了。可是随着现代生活方式的改变,很多人不再买沙发了,让客厅尽量开阔,也有一些人,选择定制卡座沙发取代传统沙发,这种方法特别适用于小户型里,利用卡座的优势来提高室内宽敞度。

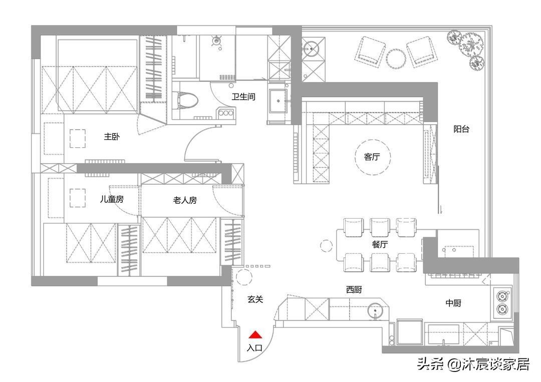
在一些大城市里,小户型很受初次购房者的青睐,尤其学区房,年轻朋友们买下它方便小孩读书,虽然面积是小了一点,但通过后期装修,也能让家大放异彩。正如本期我要来给大家分享的案例,这对年轻夫妻买下一套仅89平方的二手学区房,想要客厅,又不想让小空间看着显挤,一顿操作后选择定制卡座式沙发,看完后发现卡座真是小户型的“救星”,让室内好看又实用。
房屋信息

图/如壹設計
面积:89平方建筑面积,其中阳台就占据了14平方米,剩余可利用空间只有75平方米
户型结构:两室两厅
居住成员:夫妻俩人带1小女孩,父母每年会来住几个月
改造亮点
① 两室改三室:次卧室一分为二,成为女儿房和父母房;
② 扩大原有卫生间,虽然主卧室是小了,但让卫生间完美实现四分离;
③ 父母喜欢看电视,必须要有客厅,但基于空间并不大,又要方便儿童的玩耍,只能采用围合式的卡座设计。
下面就跟我一起去看实景!
玄关
一进门就是玄关,除了制作木格栅隔断增加了些私密性外,细节之处更是令人瞠目结舌。对照平面图,你会发现,玄关处的屏风最左侧是卧室里的部分衣柜,延伸做出极简的原木竖条格栅,简而不凡,让次卧室充分利用空间。
地面也是小心机满满,铺的六角地砖一直到厨房,让入户处好打理又好看。
至于收纳,为了避免直角过于尖锐,玄关右侧面在拐角处做了斜边处理,更加柔和大方,鞋柜还连着厨房里制作了嵌入式的烤箱。
不一样的客厅
家里最主要的互动区,这个客厅长着可与以往看到的不一样,没有用传统的用可移走式沙发,而是定制成“L”型的卡座式沙发,让人眼前一亮,也不要茶几功能,让中间区域尽量留空,就是为了方便小孩在地上玩耍。
卡座沙发深度50CM,底下全是开放式的储物格,小孩平时玩的玩具可以随手就收纳起来,非常方便。

当然相比传统的沙发,卡座沙发坐感会较硬,舒适度会逊色很多,但比起“去客厅”的设计,这个家还是有会客功能,一家人可以围坐着聊天,看着地面玩乐的小孩,生活幸福无比。
在墙面上制作了吊柜功能,用于放书,夜晚当家人睡去,一切回归宁静,这里俨然成为一个安静的阅读区,坐在卡座上看书,也是两个主人的爱好。
推荐阅读
- 屋主|56㎡小户型老房改造,小而美的设计!
- 春节|如果能重来,阳台一定“9不装”,并非迷信,是过来人的经验教训
- 装修|乔迁新房3月以泪洗面!当初的不理智,连犯15个极品装修坑!作孽
- 现代风|168㎡现代风,带着浓郁的归属感与愉悦感
- 深色|155㎡简约风,承载着三代人的生活,不花哨让家务少一半
- 混淆感|146㎡北欧经典白色三居室,诠释令人心醉的优雅
- 造纸|生活用纸,黄卫生纸真的好于白色卫生纸吗?来听造纸员工怎么说!
- 对象|廉租房和公租房的有什么区别?
- 饱和度|173㎡轻奢新中式,古典和现代的碰撞,唯美浪漫!
- 小钱|游点好笑!收手机的新方式,一抓一个准!这老师怕是柯南看多了?
