小空间|生活艺术家 篇二十八:成都夫妻的45㎡婚房火了,坚持一体式布局,却有藏不住的高级感
作者:小装修
在很多人看来,婚房就一定得买大户型的,户型买大了,装修预算就不够,而且生活负担也变大了。因此小户型的婚房,成为了许多年轻人的选择。
比如这对成都夫妻的婚房,仅有45的小空间,面积一点都不大,夫妻俩坚持一体式的开放式布局,搭配巧妙地规划之后,竟呈现出了豪宅一般的气场,蜗居也有藏不住的高级感。
设计前言
许多人在小户型的装修上,总觉得“麻雀虽小,五脏俱全”就行。但对于这对夫妻来说,只满足生活需求的婚房,并不等于幸福。
为了追求更高品质的生活,他们在有限的45空间里,打造出了豪宅一般的居住氛围,真的高级感十足。
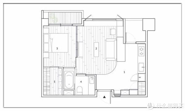
户型布局
在平面布局上,客餐厅以及厨房均以一体式的布局为主,搭配客厅里甚至还塞进了一个办公区域,而主卧与衣帽间相邻,还设置了一个带浴缸的卫生间,功能区域划分显得井井有条。
入户玄关
入户玄关的设计,显得简约又素简,弧形的混凝土地面,与客厅的木质地板进行了巧妙的衔接,在视觉上显得特别有艺术氛围。

收纳考量
考虑到小户型的空间收纳需求,从玄关再到厨房区域,设计师加入了嵌入式的收纳柜设计,通顶式的木色壁橱,一一延伸开来,开放式的布局,让入户的第一眼,就拥有宽敞开阔的视野。
【 小空间|生活艺术家 篇二十八:成都夫妻的45㎡婚房火了,坚持一体式布局,却有藏不住的高级感】
厨房设计
厨房空间的设计,以一字型的布局为主,大体量的冰箱被嵌入在柜体之中,同时厨房操作台的下方, 也加入了橱柜,增加收纳功能。
上方空间为了避免压抑感,以隔板代替吊柜,再点缀了绿植,让厨房生机盎然之余,也显得美观实用。
隔断餐桌
厨房与客厅之间,以一个白色的岛台进行隔断,这个岛台既是操作空间,也兼顾了餐桌功能,同时也客厅厨房之间的隔断,巧妙地隔开了两个功能区域。
如此巧妙的设计,搭配清爽简约的色调,让整个功能区显得开阔,又彼此独立。
巧妙布局
厨房、餐厅以及客厅之间的规划,颠覆了传统的布局,以全新个性的布局为主,打开了小户型空间的生活新方式。
客厅设计
再将视线放在客厅区域,不论是摆设还是色调,都延续了整体的简约之风,并且以功能性的家具为主,整个空间显得干净利落。
除了去主灯,改用轨道灯带之外,窗侧的飘窗也算是一个亮点,让客厅凭空多出了一个休闲区域,也满足屋子的收纳需求,可以放置一些书籍和日常杂物。
玻璃隔断
客厅的电视背景墙,与主卧的玻璃隔断进行了衔接设计,完美搭配的同时,也增强了小公寓的采光效果。
同时也让客厅与卧室之间,进行了功能分区设计。

推荐阅读
- 屋主|56㎡小户型老房改造,小而美的设计!
- 深色|155㎡简约风,承载着三代人的生活,不花哨让家务少一半
- 造纸|生活用纸,黄卫生纸真的好于白色卫生纸吗?来听造纸员工怎么说!
- 美好生活|欧哲门窗副总经理周志军:「拓」不忘初心同心同德,成为美好生活空间首选品牌
- 小钱|游点好笑!收手机的新方式,一抓一个准!这老师怕是柯南看多了?
- 银行|请注意!今日起各地房贷利率普遍下降5个基点 业内预期:部分地区房贷利率或仍有下调空间
- 背景墙|97㎡现代风,以时尚打造空间,以新颖突出特点
- 厨房|一居室也能如此精彩,展现单身人士的高端生活,享受生活的乐趣
- 购房置业|上海女子拍下对楼住户家无敌露台,超大空间网友酸了:买房送操场
- 三居室|118平现代风三居室,一个简单而纯粹还原生活色彩的家
