原木色|不得不佩服台湾的设计,39㎡住一家三口,功能齐全还宽敞明亮!
#百度家居大师团#
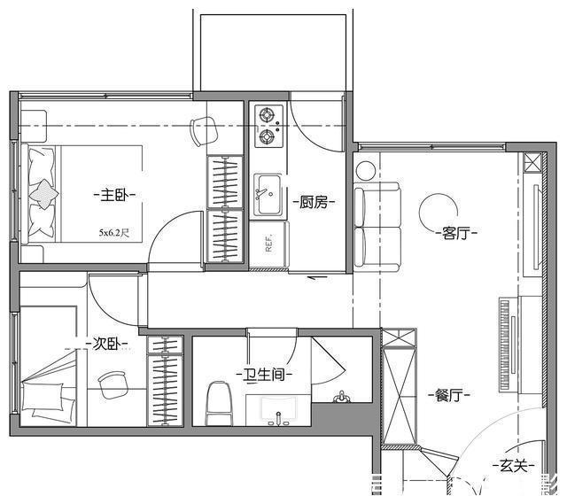
今天小编给大家分享的案例来自台湾,屋主是一对年轻的夫妻,为了迎接小生命的到来,他们从父母家搬出,拥有了这套属于自己的纯净北欧风小家,开启人生的新篇章。全屋通过清爽的配色和简洁的线条,借由斜角动线放大了39㎡的小户型住宅,实现精致小巧的居家风格。话不多说,快跟随小编的步伐,一起来看看吧。平面布置图
房屋信息:本案例户型2房2厅1卫,三口之家,套内面积约为39㎡。屋主需求:希望拥有足够多的收纳空间;公共空间要放得下钢琴;规划孩子可以活动玩耍的空间;有餐桌但是不要占用过多的位置。玄关&餐厅设计
收纳和动线设计一直都是小户型需要首先解决的问题,本案例的玄关位置利用斜角设计增加了一个小型的储藏室,可以用来放置吸尘器或者孩子的婴儿车等大件物品。
餐厅的餐桌结合收纳柜做一体设计,这种灵活的定制家具非常适用于小户型。一侧增加了一组玻璃层板展示柜,轻盈的玻璃材质也让空间显得更加通透。玄关的落尘区以及最手边的小鞋柜都采用了四分之一圆的形式,巧妙地收齐畸零空间。
对于有孩子的家庭来讲,需要尽可能地增加孩子的活动空间,这种可以90度旋转的桌子,拉开时可以作为餐桌、书桌使用,再结合一侧的餐边柜,还可以扩充厨房的操作台面。学会空间的多功能化,才能让小户型也功能齐全且宽敞明亮。客厅设计
本案例为了给孩子留有充足的活动区域,所有客厅没有购买沙发以及大型的茶几,后期可根据实际需求再进行调整。
配色上,全屋以纯净的白色调为底,搭配清浅的原木色地板、电视柜,辅以黑白格纹的地毯和单椅,温暖的阳光透过窗户洒向室内,多么舒适惬意的生活。
设计师巧妙地利用了梁下的畸零空间规划出餐边柜,中部留空的形式,可供屋主放置咖啡机、烤箱等小家电,壁面采用了水磨石瓷砖铺设,比墙漆更容易清洁。客厅背墙也铺设了理石瓷砖,防潮好打理的同时,也让空间显得不那么单调。主卧设计
主卧室是两面采光的格局,床头位置采用了折叠窗的形式进行遮掩,关上时和墙面融为一体,也可以为屋主营造更安逸的睡眠环境。
床尾则依据户型设计了整面的收纳衣柜,为了减轻大面积柜体的压迫感,顶柜采用了白色,从视觉上降低了柜体高度。进门处留一处开放式的悬挂区,非常的实用。配色上,灰色搭配黄铜把手的设计,简练大气。
靠窗位置则设计为梳妆台区域,大大的镜柜后面可为女屋主的化妆品提供充足的收纳空间,同时梳妆台也和卧室衣柜完美衔接在一起,充分利用了畸零空间。儿童房设计
推荐阅读
- 灰尘|家中阳台不要装推拉门了,装这种更实用个性,不得不感叹太聪明了
- 三居室|118平现代风三居室,一个简单而纯粹还原生活色彩的家
- 房产税|美国作为发达国家,他们为何不用混凝土建造房子原因很现实
- 烤漆面|老公坚持餐厅不做柜子,原来用吊兰做隔断可以这么漂亮,学到了
- 武汉|合肥楼市新房火热的原因找到了
- 购房置业|为什么买房要牢记“远二近三”原则?懂行的人都这么做,全国通用
- 开阳|房价下跌势头强劲,炒房客为何不积极抛房?主要有这5个原因
- 楼市|稳楼市不是说说就行的,这2个原因,让稳楼市的难度加大
- 贷款买房|20年后,租房或成为常态!有2方面原因影响
- |20年后,租房或成为常态!有2方面原因影响
