鞋柜|40平一居室柜体的打造将走廊利用,真是处处都是收纳空间( 二 )

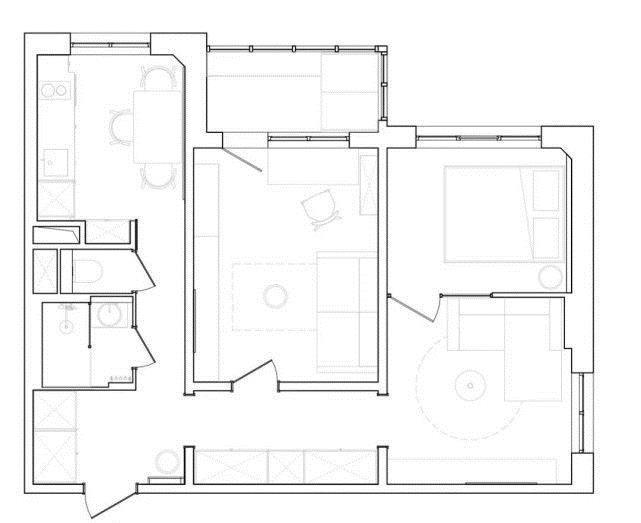
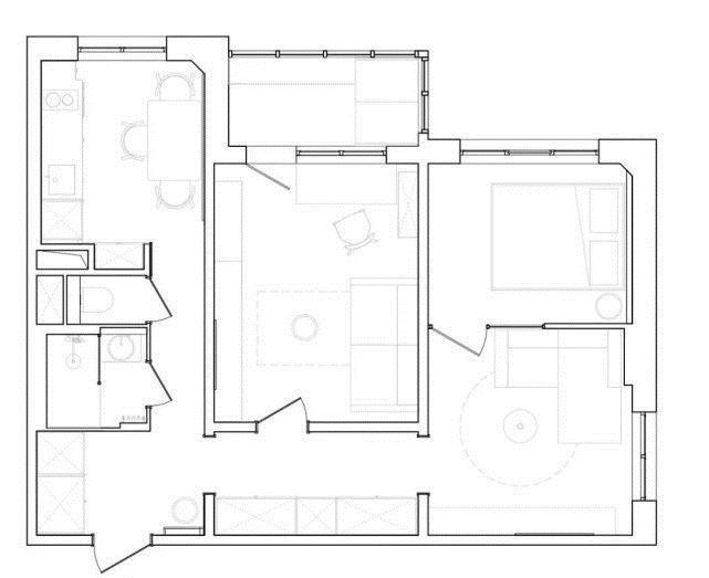
入户的位置,希望给人一种豁然开朗的感觉,小户型在设计中最忌讳的就是堆砌,保留空间原始的样子,简洁才能舒适。
【 鞋柜|40平一居室柜体的打造将走廊利用,真是处处都是收纳空间】原本是一个没有客厅的两居室,走廊占据了很大空间,卫生间非常狭小。
推荐阅读
- 上港|从上港星江湾现场发来一条项目新消息,请查看
- 春节|如果能重来,阳台一定“9不装”,并非迷信,是过来人的经验教训
- 装修|淋浴房还可以坐着洗澡,一开始很不理解,装修后才发现太实用了!
- 深色|155㎡简约风,承载着三代人的生活,不花哨让家务少一半
- 心塞|5个月装修一套房,硬装让我喜出望外,结果家具一上全废了!心塞
- 小钱|游点好笑!收手机的新方式,一抓一个准!这老师怕是柯南看多了?
- 厨房|一居室也能如此精彩,展现单身人士的高端生活,享受生活的乐趣
- |“最惨购房者”相关话题登热搜榜首,到底是怎么一回事?
- 武汉市自然资源和规划局|确定了!白沙洲将新添一所高中
- 洗头|崩溃现场:装修的10条坑,我都替你踩扁了,请你一定要避开
