装修|她家装修看似简单,却赢在了细节上,全屋实用又美观,晒晒!
细节控的家有多“强大”?那必须得收纳到位、颜值在线,还能充分将缺点转为优势,就像本期案例这样,你很难挑出毛病。本期,甜茶为大家分享的这一套120㎡的家装案例,看似装修简洁,实则处处藏着“小心机”。讲真,我几乎是全程张着大嘴巴看完她家装修,惊叹设计师的想法独到,有太多值得学习的地方。
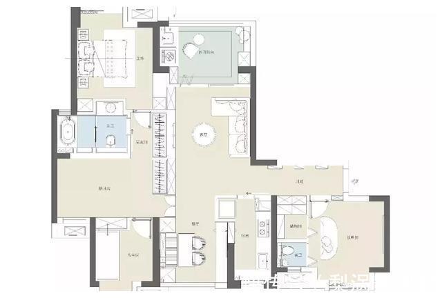
▲装修实拍图//户型分析//先来一起看下这套户型,面积约120㎡,格局还算方正。优点:有四个卧室,承重墙少。缺点:每个房间都比较小,部分区域采光较差。//设计亮点//设计师根据屋主一家三口的居住需求,结合户型的优缺点,对其进行了以下改造:①拆除屋内部分非承重墙,打通公共区域之间的界限,提升空间感和室内采光;②厨房与餐厅之间开“室内窗”、做吧台,增加交互性;③主卧与儿童房之间做收纳间,省略走廊空间,提高利用率。
▲装修平面图—■玄关■—一走进玄关,就能感受到满满的惊喜感,“白色 原木色”的搭配,给人一种温馨的归属感。玄关左侧是嵌入式玄关柜,用来存放鞋子和杂物;右侧墙面做了“柜格 挂钩”的组合,可摆放装饰品或放置随身小物品,很有生活氛围感。
▲玄关实拍图—■客厅■—客厅面积不大,但收纳功能满分。设计师利用电视背景墙,做了整面高柜,兼具书柜、展示柜、收纳柜和电视柜等多重功能。柜子的中间预留出电视机的位置,搭配白色移门,可根据需求推拉开关,使用起来非常方便。
▲客厅实拍图客厅内的软装,都围绕着整屋装修风格,浅灰色沙发、原木时钟、北欧风圆桌和装饰画等,为家里增添了一份温馨的生活气息。
▲客厅实拍图客厅与阳台之间,有了一扇小窗户,设计师把窗框换成了原木材质,更贴合整体装修风格;并从底部延伸一部分做置物隔板,用来放装饰品。
▲客厅实拍图—■餐厅■—餐厅做了时下非常流行的卡座设计,可容纳4-6人同时用餐。卡座的后面为嵌入式收纳组合柜,造型独特,既有储物功能,又能起到装饰空间的作用。
▲餐厅实拍图考虑到卡座的位置,可能会影响到屋主从柜内拿东西,所以设计师在柜子里做了“抽拉装置”,只需轻轻一拉,就能拿到想要的东西,太方便了!
▲餐厅实拍图餐厅与厨房之间,开了一扇小窗户,并做了吧台的设计,很有“深夜食堂”的感觉,提升了生活成员之间的互动性。
▲餐厅实拍图—■厨房■—厨房入口处是烟道的位置,为了减少这个“大柱子”带来的尴尬,设计师围绕它做了木质移门和侧面收纳,化缺陷为亮点,超棒!
▲厨房实拍图厨房格局为U型设计,动线流畅。橱柜和墙砖都选择了白色的,干净明亮,日常打理起来也非常方便。吊柜内侧,安装了抽拉装置,里面摆放了常用的厨具和清洁物品。平时需要使用时,只需轻轻向下拉,即可拿到想要的东西;用完放回隐藏至吊柜内,可保持屋内整洁。
推荐阅读
- 装修|乔迁新房3月以泪洗面!当初的不理智,连犯15个极品装修坑!作孽
- 装修|淋浴房还可以坐着洗澡,一开始很不理解,装修后才发现太实用了!
- 施工者|不管家多大,装修时做好这12处细节,美观与舒适并存,幸福感提升
- 心塞|5个月装修一套房,硬装让我喜出望外,结果家具一上全废了!心塞
- 装修|空调外机万万不能这样挂墙,若不是师傅提醒,我家都装错了!
- 洗头|崩溃现场:装修的10条坑,我都替你踩扁了,请你一定要避开
- 抽油烟机|婆婆抠出新境界,5万装修婚房还带家电,如此寒酸真让人不想嫁了
- 她家148平米,进门就被玄关迷住,不做吊顶跟背景墙,阳台超漂亮
- 薄荷蓝|走进她家,才知什么叫美观与实用并存,全屋温暖又清爽,太舒服了
- 房子|越来越多人用这“两个方法”装修房子,可升值十几万!
