卫生间|62㎡小户型真能作妖,一个卫生间非要装俩门,装完好像100㎡!
62㎡小户型真能作妖,一个卫生间非要装俩门,装完好像100㎡!
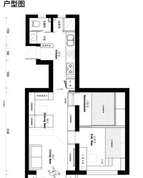
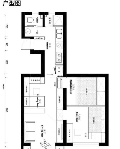
今天看到一个有趣的户型,房子面积不大,只有62㎡,客厅也不大,和厨房还有走廊挤在一起。但是却作妖的将一个卫生间,装了两个门!本以为会很乱,没想到装完好像100㎡,这样的户型布局,一定要和大家分享一下!
这个户型平面图有点异型,但大致上来说,主要区域布局还算工整!一堵隔断墙加上一个大走廊,将空间划分成动静两个区域,动区是玄关、客厅、厨房和卫生间,隔断墙另一侧的静区就是主卧和儿童房!
进门玄关设计超憋屈,户型布局没有玄关柜,业主偏要装个鞋柜,只能委屈进户空间了!白色鞋柜和深棕色的房门,颜色上还有些不搭调,感觉怪怪的!
不过穿过玄关、厨房来到客厅后,空间还满宽敞的,客餐厅一体式空间布局!中间没有隔断,让空间更加宽敞通透。
客厅对面本来是个隔断墙,但是为了增加整体统一性,设计师将整面墙都做了白色护墙板和收纳柜,甚至连门都做了隐藏设计,这样可以增加客厅的完整性!灰色的沙发高级简约还耐脏,对面是特意留出来的电视挂放格。将电视卧进柜子里,和柜子达成统一性!减少突兀感!
因为房子的面积小,所以设计师利用一切可利用的空间,打造收纳区,餐厅的餐边桌就是最好的设计,L型大转角餐边柜,将餐桌形成半包围设计,营造具有包裹感和区域性的用餐环境!同时还能在增加超多收纳力!
客厅空间比较小,但是还有一个小阳台,阳台也被纳入客厅区域,两边的垛子分别打造了卡座和书桌!增加功能区。而客厅本身因为面积小,所以沙发只选择了小巧精致的款。以小博大,可以释放一部分客厅面积!
厨房和客厅中间有一个玻璃隔断门,可以防止油烟乱串。简单的顶吸油烟机,和双灶台设计,就占用了一半的橱柜踏面,超大洗菜池,可以满足一日三餐碗碟的清洗。用着和你属实,只不过切菜区的面积较小。
因为要摆放冰箱,所以也只能这样了。但是利用隔断门将客厅和厨房还有玄关分成两个部分,这个设计增加了空间的层次感。同时这种空间半隔断设计也拉伸了空间的延展性!看起来房子更宽敞了。
灶台左边还有一个空余的区域,用来放洗衣机,恰好也是厕所的门口,进水和下水也比较好布局。
为了不让油烟乱串,在灶台的另一侧还装了百褶门,拉上之后,厨房就成了一个封闭的空间!
不够虽然厨房面积比较窄,但卫生间却简直装俩门。而且卫生间还是四式分离设计,洗手台外移,一个马桶间,一个淋浴房,洗手台对面还有一个洗衣机的位置。真是让人有点意想不到!
推荐阅读
- 屋主|56㎡小户型老房改造,小而美的设计!
- 现代风|168㎡现代风,带着浓郁的归属感与愉悦感
- 深色|155㎡简约风,承载着三代人的生活,不花哨让家务少一半
- 混淆感|146㎡北欧经典白色三居室,诠释令人心醉的优雅
- 饱和度|173㎡轻奢新中式,古典和现代的碰撞,唯美浪漫!
- 小钱|游点好笑!收手机的新方式,一抓一个准!这老师怕是柯南看多了?
- 背景墙|97㎡现代风,以时尚打造空间,以新颖突出特点
- 地板|160㎡四居室,玄关比我家卧室都大,这才是真正的低调奢华有内涵
- 卫生间|129平现代美式三居室,打造出一个舒适又温馨的美式家
- 公示|一处体育中心项目、一处小型口袋公园!市北两项目规划公示,配套升级
