空间|三室62平老房改造,拆掉次卧和客厅,打造轻奢精品小美宅
三室62平老房改造,拆掉次卧和客厅,打造轻奢精品小美宅
本案原本是一个三室的62平老屋,因为房主希望重新回来居住,因此决心进行全面的装修改造。房主在查看过大量的房屋设计案例之后感觉都不是自己想要的风格,在最后将一些认为比较和谐的元素以及设计内容挑选出来,打造成如今的这个混搭风的空间。
案例:62平混搭风空间
居住成员:两人
房屋面积:62平
房屋类型:两室
空间格局:客厅、餐厅、厨房、卫浴、卧室×2
主要建材:灰色特殊涂料、大理石瓷砖、百叶窗、木作、灯具等
预算:30~50万
设计师:杨允帧
本案在材质的选择上是格外用心的,独特纹路的涂料还有木作柜的灯线烘托,让整体场景有了更多的表情,丰富空间内容。除此之外设计师在光线组合上也颇为用心,为房主搭建一个明亮舒适的生活场景。
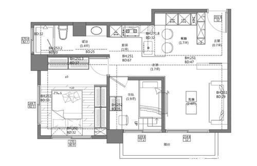
【户型图】
本案空间算不上大,而且因为是老屋了,格局也有一些不太理想的地方。原本房价为了多人居住,因此是一个三室的结构,设计师在这里拆掉原本的一个卧室,将其加入到公场域空间当中,让客餐厅空间显得格外宽敞一些。
【玄关】

设计亮点:功能性隔断
玄关位置做了一个顶天立柜作为玄关柜所用,柜体兼具鞋柜和储物柜机能,中间有镂空的台面设计,还用灯线作以突出化,避免柜面显得过分呆板。在玄关和客厅之间有一个功能性的隔断,这个隔断的表面选用丝绒感的意大利艺术涂料,表面的纹理质感丰富。同时在隔断当中还有绿植端景以及酒柜功能注入,将其打造成为了一个多功能性的实用美观隔断。
【客厅】

设计亮点:优雅品质
客厅一侧看隔断就是一个开放式的木作材料柜内嵌其中,大小格子错位,可以在这些放一些书籍或者是装饰摆件,打造一个造型端景,烘托整体优雅的空间氛围。
设计亮点:高级质感
客厅的电视墙面是用和隔断相同的特殊涂料涂抹的,纹理表现独特有质感。

设计亮点:色彩搭配
在客厅空间当中有多个色彩缤纷的软件,在原本灰白为主的空间当中增加了更多的亮点元素。
【厨房】

设计亮点:浪漫海洋
厨房是一个开放式的结构,纯白的柜体门片洁净明亮。在料理台的墙面上,设计师利用彩印玻璃,打造出一个蔚蓝海洋的意象,为空间增加更多的浪漫元素。
【餐厅】
设计亮点:吧台
和餐厅橱柜台面相连的就是一个中岛吧台了,这也是餐厅区。因为目前家里也就两个人,不需要更多的用餐空间,吧台设计不仅节省空间也能够构建一个只属于两个人的浪漫环境。同时这样的设计也方便夫妻二人在一人烹饪的时候也能够交流。
推荐阅读
- 美好生活|欧哲门窗副总经理周志军:「拓」不忘初心同心同德,成为美好生活空间首选品牌
- 银行|请注意!今日起各地房贷利率普遍下降5个基点 业内预期:部分地区房贷利率或仍有下调空间
- 背景墙|97㎡现代风,以时尚打造空间,以新颖突出特点
- 购房置业|上海女子拍下对楼住户家无敌露台,超大空间网友酸了:买房送操场
- 墙面|过道能''挤''出空间 5种方式帮你充分利用每一寸,档次蹭蹭上涨
- 全屋|次卧空间小,老婆灵机一动不装“床”,孩子一眼就喜欢上了晒晒
- 轻奢风|什么样的生活空间,才算得上是美好现代轻奢风,大道至简
- 购房置业|三四线城市的住房真的值得购买吗?不能一概而论,还是有升值空间
- 箭牌家居第二季全空间定制设计大赛获奖作品公布|定制快讯| 大赛","sex_score":"0","source":"wspuser_3beijing,nbbengnewid_e4563a267737194b97f7d45af8307142,nbbengdu
- 书房|成都80平三室之家,一体式餐厨设计,仿佛把日剧场景搬回家
