现代人生活水平越来越高,但还是有很多人选择回老家盖别墅,而且自己盖房子,不像在城里那样有范围限制,在农村可以按着自己的喜好来,喜欢什么户型就建什么户型。相信很多人喜欢二层半的别墅吧,今天介绍的这三款二层半建房图纸设计图,简单好看,造价经济,即使经济有限的家庭也能够盖的起。
款式一:农村二层半自建楼房设计图,户型简单实用





两层半别墅设计图
图纸介绍:这款别墅占地120平方米左右,共有三层。一楼的老人房带有独立的卫生间,二层活动室的设计可以使业主在休息的时候也能得到放松,三楼大露台设计可以满足业主家庭的晾晒需求。
占地面积:10.76m*12.26m,121平方米左右;
建筑层高:二层;
建筑高度:12.647米(含屋顶);
设计功能:
一层户型:玄关、客厅、机房、厨房、餐厅、卧室(带卫生间)、卧室、卫生间;
二层户型:茶室、活动室、卧室(带卫生间)、卧室x3、卫生间、阳台;
三层户型:活动室、卧室x3、卫生间、露台;
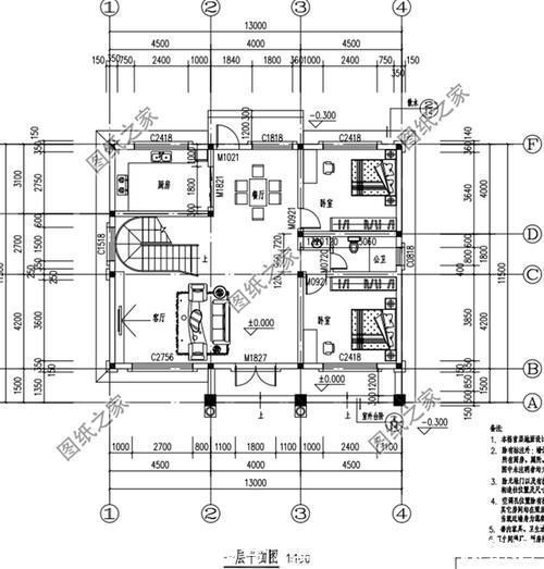
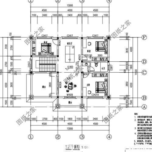
款式二:农村两层半别墅设计图,客厅挑空设计




两层半别墅设计图
图纸介绍:这款两层半别墅客厅挑空,带大露台设计。外观大气时尚,室内布局通透大气,多个卧室满足一家人居住,三楼还设计了一个露台供大家使用。
占地面积:13.0m*11.5m,一层占地136平方米左右;
建筑层高:三层;
建筑高度:12.78米(含屋顶);
设计功能:
一 层:客厅、厨房、餐厅、卧室×2、卫生间;
二 层:客厅上空、客厅、卧室(带书房,卫生间)、卧室、娱乐厅、阳台;
三 层:茶室、娱乐厅、卧室x3、卫生间、大露台;
款式三:农村新中式二层半别墅设计图,占地144平方米左右




二层半别墅设计图
推荐阅读
- 深色|155㎡简约风,承载着三代人的生活,不花哨让家务少一半
- 管道|为什么说:再穷也不买二层?了解这些弊端之后,就知道多糟心了!
- 建房子|面宽11米, 进深16.5米的农村三层别墅, 前后有花院还带车库, 完美!
- 别墅|参观亲戚上海的豪宅,别墅硬是住成农村房,真是糟蹋了好房子
- 购房置业|上半年能再买房吗?2个消息接踵而至,央媒定调,答案很明显
- 购房置业|农村建新房就选这套四层别墅,占地100多平,8间卧室人人都有地睡
- 别墅|土豪农村盖大别墅,人人羡慕,如今却成为全村人眼中的大笑料
- 别墅|买不起别墅,买了一楼带30㎡院子的房子,入住两年多,后悔了吗?
- 贵州|利落挺括,12×11米现代二层别墅,4卧2厅好格局开启全新生活
- 北碚|重庆北碚高端别墅群,数量众多依山而建,满目疮痍好比世界末日
