50平方米的大变身,充满书香气息和文艺氛围,打造别致雅居
小户型虽然在空间上没有较充足的面积,但是在改造中也是有比较多的风格可以实现。突破小户型的结构弊端,利用软装的搭配,营造出一个宽敞明亮的现代家居环境,更是把业主对生活的喜爱完美地融合到家居设计中,感受别样的生活情趣。

房屋户型:
两室
房屋面积:
50平方米
装修预算
:20万
所在城市
:四川 成都
设计师:
李文伟
主要建材:
线板、木皮、喷漆、大理石、黑铁漆、铁件、玻璃、木地板、壁纸

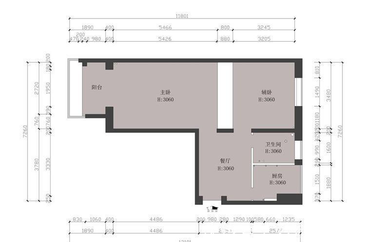
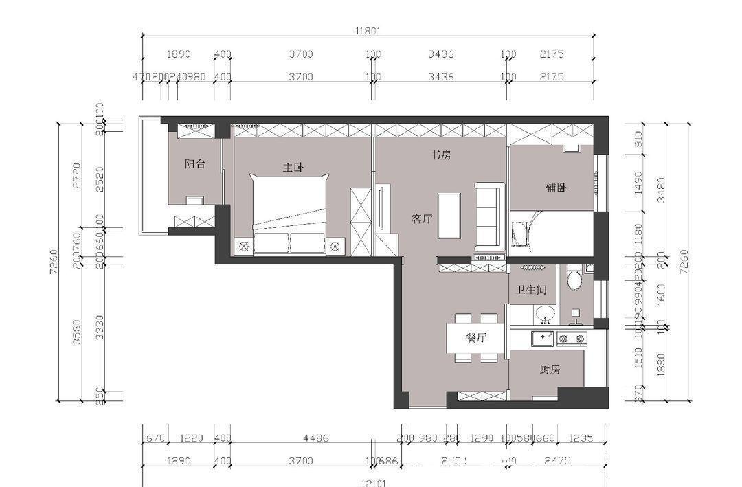
【户型图】


因为房屋年代比较久远,所以在结构上存在比较多的弊端,对空间的布局和划分非常不清楚,也没有保留足够宽敞的面积,日常起居都比较的不方便。
所以设计师对平面的布置进行了较大幅度的改造,通过软装上的搭配,把空间划分出更加明确,拆除不必要的隔断,全部用玻璃做代替,这样不仅可以在视觉上起到扩展空间的作用,还更加的实用和大气。

【客厅】


设计重点:可移动滑门增加了空间可变性
客厅的设计非常现代,大面积的填充色彩让空间格外的丰富。客厅定制了一整面的书柜,业主的藏书再也不担心没有地方存放了。可移动的滑门可以按照自己的心情肆意地移动,也增加了空间的多样魅力。

因为有整面的衣柜所以采光一定要得到保证,才能不会让客厅变得压抑和昏暗。设计师把隔断全部替换成了玻璃,这样既可以保证有足够的阳光,还能增加空间的质感。实木地板干净又自然,席地而坐也完全不成问题,拉上一张地毯,坐在地上就可以看上一整天的书,生活节奏也慢了下来。
【餐厅】


设计重点:半开放式格局更加宽敞
餐厅改造之后和厨房做成了开放式格局,利用空间的距离感打造出别致的就餐氛围。延续客厅的文艺风格,餐厅背景墙也采用各种电影画报做装饰,各种经典电影的海报把餐厅渲染得更加浪漫和充满仪式感。
【卧室】

设计重点:确保空间独立私密
因为卧室是休息空间,需要保证足够的安静和舒适,所以设计师利用柜子做隔断,这样既可以保证空间足够私密和安静,还能增加大容量的收纳空间。床头的条纹壁纸更加凸显空间的安静和素雅。

主卧也是延伸了客厅的书柜,在床尾的背景墙定制了大面积的展示柜,不仅可以作为收纳区,也可以再存放一些书籍,睡觉之前也可以随意的拿出几本书来阅读。
推荐阅读
- 屋主|56㎡小户型老房改造,小而美的设计!
- 春节|如果能重来,阳台一定“9不装”,并非迷信,是过来人的经验教训
- 装修|乔迁新房3月以泪洗面!当初的不理智,连犯15个极品装修坑!作孽
- 现代风|168㎡现代风,带着浓郁的归属感与愉悦感
- 深色|155㎡简约风,承载着三代人的生活,不花哨让家务少一半
- 混淆感|146㎡北欧经典白色三居室,诠释令人心醉的优雅
- 造纸|生活用纸,黄卫生纸真的好于白色卫生纸吗?来听造纸员工怎么说!
- 对象|廉租房和公租房的有什么区别?
- 饱和度|173㎡轻奢新中式,古典和现代的碰撞,唯美浪漫!
- 小钱|游点好笑!收手机的新方式,一抓一个准!这老师怕是柯南看多了?
