46㎡小公寓:玻璃隔断通透明亮,衣帽间很迷你,干湿分类真实用!
之前为大家分享了很多小公寓装修设计的案例,很多朋友可能至今还记忆犹新,毕竟小户型房子是当下购房的很主流,更贴近百姓的生活,只要规划设计对了,一样可以享受大房子的舒适生活体验!今天小编再同大家一起欣赏一套小公寓的经典设计,虽然是只有46㎡的小户型公寓,但简约风设计十分清新舒适,完善的功能布局,充足的收纳空间设计等,都让这个小家温馨舒适,生活非常轻松惬意,很是让人羡慕!

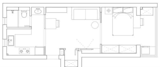
平面布置图
首先看一下平面图,客餐厅在中间区域,通过玻璃隔断做分区,右侧是卧室,左侧是厨房和卫生间,干湿分离设计、U型厨房布局、迷你衣帽间等让小公寓不但功能齐全,也更加很舒适实用。

入户玄关
入户有个独立的小玄关,门上安装一个挂钩,方便挂雨伞等。右侧做一个嵌入式为玄关鞋柜,中间镂空格内可以放摆件饰品和随手的钥匙、包包等,上下部柜门采用百叶窗式,便于内部通风,底部留空可以放拖鞋和常穿鞋子。

客厅
从玄关走廊右转,转角墙面的白色嵌入式对开门内是一个步入式衣帽间,非常迷你,但完全可以满足常穿的外套等衣物、帽子、包包等分类收纳的需要,也让玄关处整洁利落。

客餐厅在同一个区域,白色为主色调的空间,搭配人字形铺装的原木色实木地板,清新温润舒适,简约的吊顶藏光设计让空间更有层次感。

客厅
客厅摆放一个低矮的烟粉色的布艺沙发和轻盈通透的白色小茶几,节省空间,更显层高。背景墙搁板上摆放着书籍和装饰画等,很有艺术格调。

电视墙采用上下搁板式设计,将电视嵌入其中,整面的书架摆满了书籍和饰品,营造出浓浓的书香氛围。

餐厅
餐厅在客厅左侧区域,通过天棚造型做区域分隔。

原木色实木餐桌上铺一块小清新的白色方格台布,在精美的插花点缀下很有生活情调,对面靠墙摆一个实木餐边柜,用于收纳餐厅各种餐具、水具、酒具等,让餐厅整洁有序。

厨房
餐厅对面玻璃隔断内是厨房区域,做饭时关上移门,可有效阻隔油烟和气味。

厨房
U型布局的厨房,定制了整体橱柜和搁板、挂杆、置物架等,让厨房餐厨用具都能找到合理的位置。
推荐阅读
- 屋主|56㎡小户型老房改造,小而美的设计!
- 现代风|168㎡现代风,带着浓郁的归属感与愉悦感
- 深色|155㎡简约风,承载着三代人的生活,不花哨让家务少一半
- 混淆感|146㎡北欧经典白色三居室,诠释令人心醉的优雅
- 饱和度|173㎡轻奢新中式,古典和现代的碰撞,唯美浪漫!
- 小钱|游点好笑!收手机的新方式,一抓一个准!这老师怕是柯南看多了?
- 背景墙|97㎡现代风,以时尚打造空间,以新颖突出特点
- 地板|160㎡四居室,玄关比我家卧室都大,这才是真正的低调奢华有内涵
- 卫生间|129平现代美式三居室,打造出一个舒适又温馨的美式家
- 公示|一处体育中心项目、一处小型口袋公园!市北两项目规划公示,配套升级
