
案例五 平面布局图:



“我的父亲是砖瓦匠,给别人盖了一辈子房,这栋新房,既是一家人养老生活的居住地,也是他的巅峰之作”。在跟今天的晒家房主聊天时,他说了上面那句话。让人不禁好奇,有着三十多年施工经验的农村工头,会给自己建一栋什么样的房子?

案例六

平面布局图:



江西沈先生的这栋房,可谓是一波三折,他知道要想建一套漂亮的房子,一定要选好户型。可是他找好的设计公司出的图,槽点颇多,布局不实用。后来无意间看到了住宅公园分享的一套户型,尺寸与布局十分符合沈先生家的房子,便决定把刚做好的基础拆掉重建,重新施工。

而沈先生也想借自己的建房经历告诉大家:如果没有选好户型图,千万不要急着动土,否则追悔莫及。【 孙女士|实拍10省农村别墅,第4套、第7套经典又耐看,建第3套18万就够了】

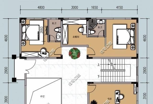
案例七 平面布局图:



老家在江西的虞先生,一直有一个农村新房梦,但是虞先生一家都在广东生活,虽说有建房的想法,但江西与广东两地间隔甚远,想建房,难上加难。幸亏有过施工经验的大伯知晓了虞先生的想法,便承担了建房的重任。

既然户型图有了,施工人员也有了,赶在2018年3月,建房工作正式开始。

案例八

平面布局图:


和各位农村朋友一样,这栋房子既是周女士给农村父母建的养老房,也是为了自己回老家方便居住而建。房子建好后,不管是邻居还是亲友看到都是交口称赞,接下来,我们就来一起看看,这栋房子到底长什么样!

推荐阅读
- 融创中国|融创手握1600亿现金,回笼资金超300亿元,孙宏斌有牌可打了?
- 苏辙|古代三大文豪,一个留子孙一套房,一个为父还贷,一个终身不买房
- 邹城|孙宏斌终于亮出了底牌!融创手里1600亿的现金不够用?
- 卢女士|惊呆!买房签完认购书,说好的9万多元优惠却没了
- 李女士|700万买别墅被退回,女子找记者曝光黑幕,开发商:赔你10万
- 上海市|祖孙三代同堂,蜗居十几平米小屋,现实版“猪笼城寨”就在上海
- 沙发|窗台空间就浪费了?看看这位女士的家,窗台不仅是沙发还能储物
- 刘女士|第一次装修被坑惨了!我交了5w智商税,总结了这20个坑!
- 房子|5年后,房子是“随便买”还是“更买不起”?孙宏斌一席话说清
- 孙宏斌|手里有100万,最近两年该买房还是该存钱?孙宏斌“三句话”说透
