要想在农村盖一栋实用又美观的小别墅,图纸的作用不可小觑,有一份详细完美的户型图,建房会方便很多。有了详细的图纸相助,房子才能建得实用又漂亮,今天小编就以这10套案例为大家说明,农村盖房,选好户型图有多重要?案例一

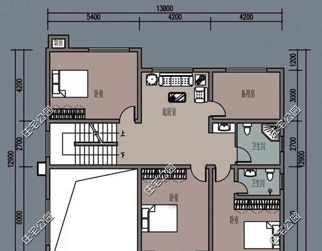
平面布局图:


家住湖南的周先生赶在2019年底建好了新房,50万的主体费用+50万的装修,总价百万建起这栋漂亮别墅,落地窗搭配大露台,生活非常舒适。

外装没有各种华丽的色彩,简单的灰白色却更加耐看。对比一下效果图跟实建案例,是不是相差无二呢?

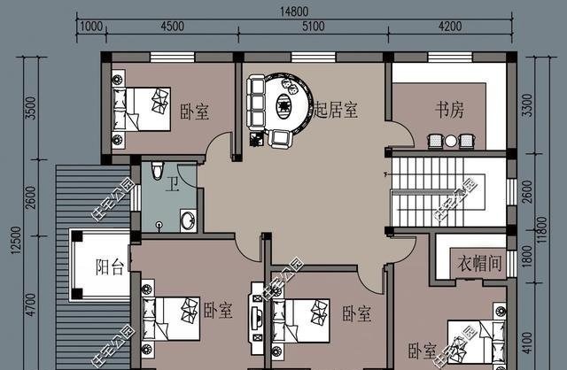
案例二 平面布局图:


这是河北甄先生农村新房,花费45万建成。房子的每一个细节都做的极为认真,图纸上的样式完美呈现出来。甄先生说起这套房也是欣喜不已,连夸选好了施工队跟图纸,才能盖出这么漂亮的房子。

甄先生向我们说,房子主体花费45万建成,院子10万,装修花了15万,总体算下来一共是70万的价格。可能会有人说,既然有这么多钱,为什么还要回村自建呢?答案就在原晒家文章里。

案例三

平面布局图:


在孙女士的老家衡阳农村,很少有人拿着图纸建房,更别说找专业设计,村里的房子基本一个样,四四方方,没有任何造型。准备建房的时候孙女士就希望能建一栋不一样的房子,外观不一定要多时尚,但一定要大方耐看,室内布局要符合新农村的生活。

因此选好图纸就成了关键所在,幸好关注了住宅公园,在图库几百套图纸中她终于看中了一套二层小洋楼。房子建好效果非常好,惊艳老家那些乡亲们。房子建好才花了18万,可以说是便宜到家了!

案例四

平面布局图:


漂亮的房子谁都喜欢,可问题是,该怎样才能建出漂亮的房子呢?看看江苏刘先生的建房案例,35万建新房,实拍照片比效果图都精致,足以看出刘先生为这栋房子付出的努力。
推荐阅读
- 融创中国|融创手握1600亿现金,回笼资金超300亿元,孙宏斌有牌可打了?
- 苏辙|古代三大文豪,一个留子孙一套房,一个为父还贷,一个终身不买房
- 邹城|孙宏斌终于亮出了底牌!融创手里1600亿的现金不够用?
- 卢女士|惊呆!买房签完认购书,说好的9万多元优惠却没了
- 李女士|700万买别墅被退回,女子找记者曝光黑幕,开发商:赔你10万
- 上海市|祖孙三代同堂,蜗居十几平米小屋,现实版“猪笼城寨”就在上海
- 沙发|窗台空间就浪费了?看看这位女士的家,窗台不仅是沙发还能储物
- 刘女士|第一次装修被坑惨了!我交了5w智商税,总结了这20个坑!
- 房子|5年后,房子是“随便买”还是“更买不起”?孙宏斌一席话说清
- 孙宏斌|手里有100万,最近两年该买房还是该存钱?孙宏斌“三句话”说透
