窗台空间就浪费了?看看这位女士的家,窗台不仅是沙发还能储物这个案例是为东莞的一家三口打造的新家,也算是一个老房子的翻新改造项目,之前家里的装修已经开始出现了破损的问题,所以业主希望装修新家为家人提供一个更舒适的家居环境,在装修的时候业主也是提出了很多自己的想法和创意,充分的利用了家里的每一处空间,在我们的印象中窗台的空间似乎没有什么大的用处,除了偶尔放一些花花草草以外就直接浪费了,但是看到这位女士的家,相信大家就会改变这个想法了,窗台不仅打造成了沙发,还可以当做书架和孩子的玩具柜,增加了储物空间。房屋户型:三室房屋面积:120平方米装修预算:30到50万元所在城市:东莞设计师:李文安主要建材:烤漆玻璃、木皮、木作、茶镜
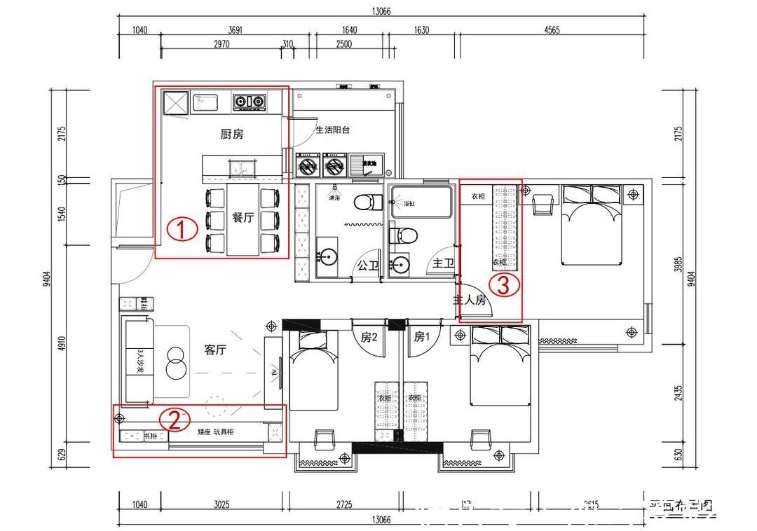
【户型图】之前的房屋还是业主结婚的时候装修的,现在很多设计已经过时了,所以装修的时候也对房屋做出了一些改造,将家里的厨房改成了开放式的区域,让空间更加的通透大方,同时为女主人增加了一个衣帽间,方便日常的起居生活。

【客厅】设计亮点:改造窗边区域客厅装修的时候充分的利用了窗户周边的区域,增加了家里的储物空间。在靠近窗边的位置设计了飘窗的休息区可以充当一个小沙发,两侧设计了书架和玩具柜,可以放置很多的书籍同时可以容纳很多小孩子的玩具,平时还可以坐在窗边休息看书,相信很多人都没想到窗台的区域还可以这样利用吧。

客厅的颜色搭配也比较清新自然,茶几和电视柜都是比较简单的款式,不会让人觉得过于厚重同时也很实用,可以满足日常的生活需求,客厅也为孩子预留了充足的活动空间。


在家休息的时候拿上一本书,安静的坐在窗边休息看书,还能欣赏窗外的风景, 忘记工作的劳累和生活中的不开心,安心地享受属于自己的轻松时光。
【厨房】设计亮点:开放式厨房厨房设计成开放式的空间之后变得更加开阔通透,功能分区也更加的明显,平时业主做饭的时候习惯使用2个洗菜盆,厨房的设计也是根据业主的做饭习惯来施工的。

【餐厅】设计亮点:酒柜区域餐厅通过一个吧台和厨房隔开,在餐厅旁边是一个酒柜区域,可以放置一些酒水饮品,也可以在这里做一些下午茶十分的方便。
【卫生间】设计亮点:添加浴帘卫生间的面积不是很大,所以只设计了一个浴帘作为隔断。
推荐阅读
- 美好生活|欧哲门窗副总经理周志军:「拓」不忘初心同心同德,成为美好生活空间首选品牌
- 银行|请注意!今日起各地房贷利率普遍下降5个基点 业内预期:部分地区房贷利率或仍有下调空间
- 背景墙|97㎡现代风,以时尚打造空间,以新颖突出特点
- 购房置业|上海女子拍下对楼住户家无敌露台,超大空间网友酸了:买房送操场
- 墙面|过道能''挤''出空间 5种方式帮你充分利用每一寸,档次蹭蹭上涨
- 全屋|次卧空间小,老婆灵机一动不装“床”,孩子一眼就喜欢上了晒晒
- 床屏|芝华仕沙发质量真的不好吗?是误解?还是真理?大家可以进来讨论讨论这个品牌
- 轻奢风|什么样的生活空间,才算得上是美好现代轻奢风,大道至简
- 购房置业|三四线城市的住房真的值得购买吗?不能一概而论,还是有升值空间
- 户型|北漂夫妻买下24㎡婚房,柱子4米宽,窗台就占户型面积一半
