前言:
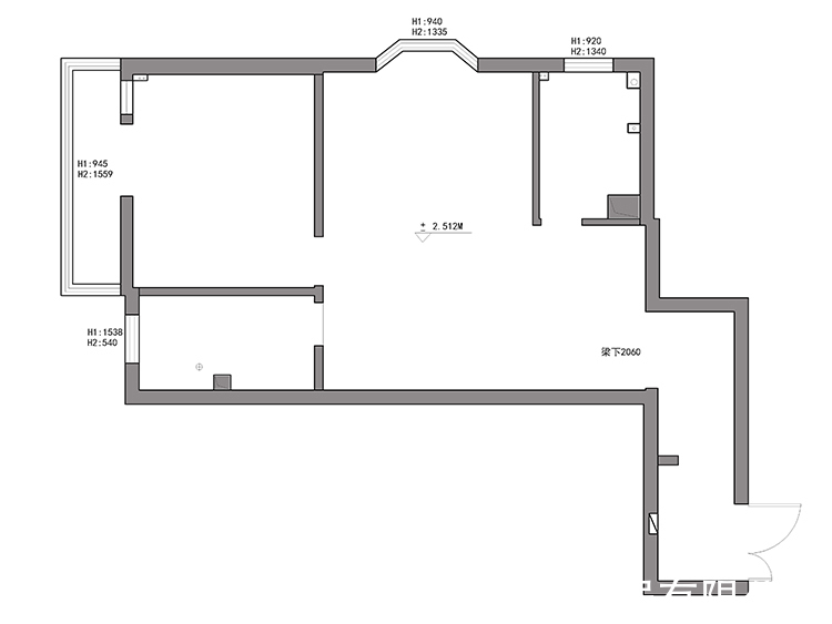
项目在朝阳,房子是父母长住, 但是委托和对接的是老人的孩子。需求还是以老人为主,常住就俩人,老人希望公共空间大一些,卫生间可以干湿分离,整体收纳多一些,还需要一个来客人能临时休息的地方。
空间展示:
户型图

项目在朝阳,房子是父母长住, 但是委托和对接的是老人的孩子。需求还是以老人为主,常住就俩人,老人希望公共空间大一些,卫生间可以干湿分离,整体收纳多一些,还需要一个来客人能临时休息的地方。

项目在朝阳,房子是父母长住, 但是委托和对接的是老人的孩子。需求还是以老人为主,常住就俩人,老人希望公共空间大一些,卫生间可以干湿分离,整体收纳多一些,还需要一个来客人能临时休息的地方。

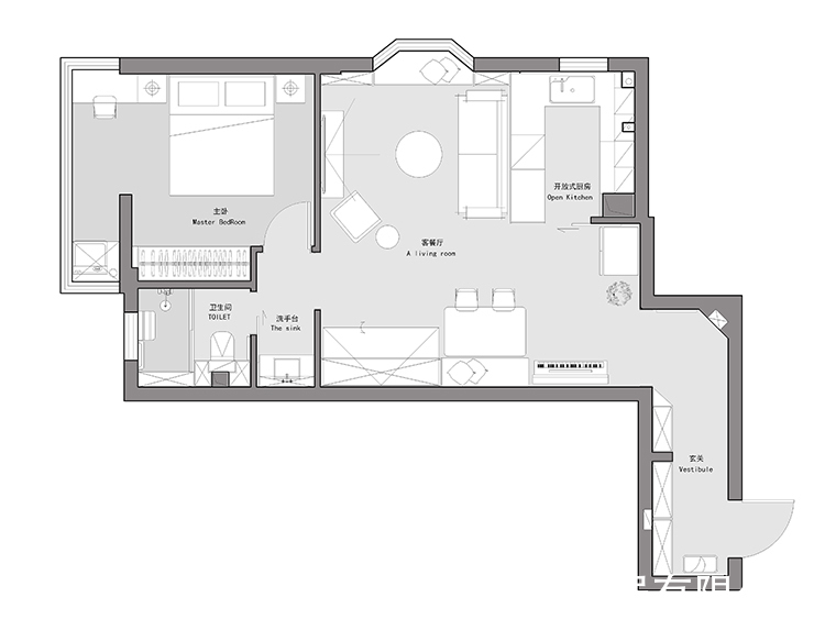
入户玄关区,可以看到中间有一道过梁,是原来入户门的位置。因为门外也是过道还就一家用,在经过物业和邻里的同意下,就把门外移出去为己所用,还多增加了一大组柜子。

因为过道的宽度有限,所以在墙面和顶面上动了一些心思。吊顶采用了周边灯槽中间下吊的形式,自带一种悬浮感。墙面是采用了石膏线的形式,可以把长长的过道,变得更有层次感。
客厅

因为过道的宽度有限,所以在墙面和顶面上动了一些心思。吊顶采用了周边灯槽中间下吊的形式,自带一种悬浮感。墙面是采用了石膏线的形式,可以把长长的过道,变得更有层次感。

老人比较喜欢现代偏轻奢一些的感觉,所以设计的时候加入了拱形门洞和金属门套,墙面多以石膏线的形式进行装饰。因为户型和采光的原因,所以白色成为面积底色,金色作为点缀。

金色的门套搭配石膏线,配上爵士白石材,简单的轻奢风也不会显得太过复杂。重点要说的是这个拱形门洞,完成这样的窄门套,对木工工艺要求度要高,需要达到完成面都是齐平的标准。
厨房

厨房三面基本都是玻璃,无形中和客厅联系在一起,增强了屋里的采光和视野。从入户玄关进来后,还会有种豁然开朗的感觉。

原来的厨房是L型的橱柜,收纳和操作区严重不足。在原有基础上往客厅扩展了一些空间,把厨房做大。关系到老人做饭的频率和大部分年轻人不一样,一天三餐都是家里做,是他们生活所需,因此有一个大厨房显得非常重要。
餐厅.

卡座形式的就餐区,上下都可以储物,餐桌也可以紧靠一边,节省不少空间。

推荐阅读
- 上港|从上港星江湾现场发来一条项目新消息,请查看
- 屋主|56㎡小户型老房改造,小而美的设计!
- 春节|如果能重来,阳台一定“9不装”,并非迷信,是过来人的经验教训
- 现代风|168㎡现代风,带着浓郁的归属感与愉悦感
- 装修|淋浴房还可以坐着洗澡,一开始很不理解,装修后才发现太实用了!
- 深色|155㎡简约风,承载着三代人的生活,不花哨让家务少一半
- 混淆感|146㎡北欧经典白色三居室,诠释令人心醉的优雅
- 饱和度|173㎡轻奢新中式,古典和现代的碰撞,唯美浪漫!
- 心塞|5个月装修一套房,硬装让我喜出望外,结果家具一上全废了!心塞
- 小钱|游点好笑!收手机的新方式,一抓一个准!这老师怕是柯南看多了?
