入住新房,其实也是在不断完善的过程。可能装修完工后觉得不如意的地方,但是经过后期慢慢完善,通过一些装饰或者局部上的调整,也能慢慢弥补。家,越住越大,越住越温馨,越住越舒适。很开心这次给大家带来坐标江苏苏州这套装修案例,屋主家最开始入住到现在,刚好入住四年的房子,档次空荡荡的家,如今越来越满,越住越温馨,更有家的味道。经过这几年的演变,很多东西都把家填满了。整个空间装修以简单舒适性为主,全屋原木风,如今四年前的房子,看起来不容易过时,真心喜欢,同时也比较羡慕这样的家!忍不住给大家分享一下,一起来感受感受屋主家的温馨,舒适的房子!(图片来源屋主:gazi的家)
【 原木风|花20万装修房子,全屋原木风,如今入住四年,不过时,分享一下】

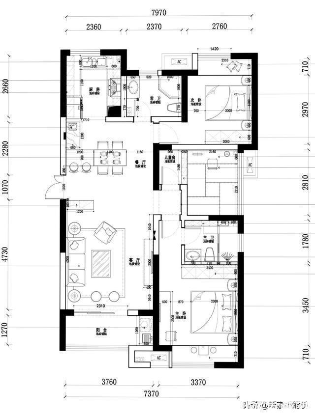
先来看看户型图吧,三房两厅的户型,面积90平,装修前后花了20万,包含大大小小的东西。原本是在玄关设计吧台,后来考虑到实用性,改做了鞋柜,以后这几年,觉得这样设计很香,非常实用。

严格意义说,户型是没有真正独立的入户玄关,但是根据生活需求,玄关是不可缺少的一部分。利用入户大门左右两边的位置,设计了玄关柜,可以满足生活需求,不会觉得有压抑感,让人进来眼前一亮,非常实用。入住四年了,东西很多,但是很有家的味道。

由于鞋柜最底下没有直接留空位置,一些常穿的鞋子直接放地面了,但不影响,摆放整齐。入户大门挂着一些中国结,墙上安装了挂钩,非常实用,可以挂包包或者其他,有一定的装饰性。


原本玄关是设计吧台的,后来考虑到实用性,设计了鞋柜,可以提供更多的收纳,鞋子也是需要这样的储物空间。原木色的鞋柜,加上地面也是原木木地板,打造一个原木风的装修,如今看起来不容易过时,非常具有时尚感。站在这个角度,左侧安装了一面全身镜,可以对着镜子整理自己穿着,非常实用。

站在入户玄关的角度看客厅,没有做电视墙,更没有电视机,直接通过投影的方式,而且投影幕布都没有,非常极简。柜子上摆放着大大小小的东西,装饰性很好,给人的感觉非常温馨,舒适。东西很多,但不会给人有所压抑感。

平时在家看电视的时间不长,所以入住四年了,也没有电视机,平时家里来客人了或者自己需要看的话,可以通过投影的方式,觉得还不错蛮不错的。白色的电视柜,显得比较整洁干净,真心不错。

客厅布置了灰色布艺沙发,坐着很舒服,同时这种颜色比较耐脏,与整个空间完美搭配。布置了不同颜色的抱枕,可以起到很好的视觉效果,蛮不错的哈。墙上挂着装饰画,可以起到很好的装饰效果,特别美。
推荐阅读
- 现代风|168㎡现代风,带着浓郁的归属感与愉悦感
- 深色|155㎡简约风,承载着三代人的生活,不花哨让家务少一半
- 助贷|助贷咨询:企业抵押贷款常见风险
- 背景墙|97㎡现代风,以时尚打造空间,以新颖突出特点
- 购房置业|经济学家:老百姓60%的钱花在房子上很危险!网友:说得很对
- 花花草草|10款高颜值阳台,你该看看!
- 三居室|118平现代风三居室,一个简单而纯粹还原生活色彩的家
- 置物区|全屋定制柜子时,记得把这3个柜子做到位,钱不白花用着也舒服!
- 大唐地产|洋房花园一楼可以做雨棚吗?
- 攀枝花|2.75亿元!四川攀枝花拍卖了两块土地使用权
