干湿分离|24㎡改出2室1厅,卫生间干湿分离,空间利用到极致!
房屋面积:24平.米房屋户.型:2室1厅1厨1卫
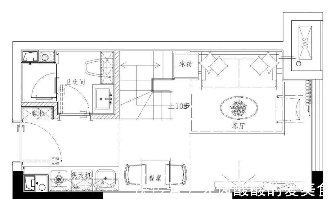
【 干湿分离|24㎡改出2室1厅,卫生间干湿分离,空间利用到极致!】房屋户.型图


01
客厅


移步入户,开.放式的空间形态尽显自然的包容与关怀。整体木质基调与清透的大地色在落地窗倾斜的阳光辉映下,轻柔舒心;木质、亚麻、布料等多材质搭配运用,既诠释了自然的丰富与野趣,也让空间愈发呈现出度假于自然的气质。



02
厨房

设计师考虑到餐厅空间有限,空间则利用格局优势,营造了视觉向上的心理感受。墙面与餐椅形成视觉统一,让用餐的仪式感在简单的一碟一羹中,愈加淡雅别致。
03
主卧



04
儿童房

小孩房的设计如三月新.生,自然呈现了孩童天性,带着初春的萌动与生命力,设计舍弃传统布局,以探索和趣味置前:书桌置于明亮处,而睡眠区则安排在了“小屋”内,自然通透又形成有趣的区域划分。
05
书房

齐家栗子提供更多装修资讯,喜欢的朋友记得收藏和关注哦!图片来源网络:侵权联系删除
推荐阅读
- 屋主|56㎡小户型老房改造,小而美的设计!
- 现代风|168㎡现代风,带着浓郁的归属感与愉悦感
- 深色|155㎡简约风,承载着三代人的生活,不花哨让家务少一半
- 混淆感|146㎡北欧经典白色三居室,诠释令人心醉的优雅
- 饱和度|173㎡轻奢新中式,古典和现代的碰撞,唯美浪漫!
- 背景墙|97㎡现代风,以时尚打造空间,以新颖突出特点
- 地板|160㎡四居室,玄关比我家卧室都大,这才是真正的低调奢华有内涵
- 棚户区改造|开盘预告|合肥又有6盘要加推,均价1.39-2.54万/㎡全都有
- 小房间|参观140㎡大婚房,朋友都夸餐边柜有档次,我却更喜欢主卧的飘窗
- |73㎡复古风两居室,年轻夫妻的高品质生活
