生活方式的变迁,对于家有了更多的需求,装修自然有了变化。和以往的装修对比,现在的装修更多的是融入自己的生活方式。比如今天分享的这套案例,93㎡一家三口住,屋主夫妻想给孩子更亲密的陪伴,舍弃了中规中矩的客厅设计,不放沙发茶几,只摆一张大餐桌,空间运用更有弹性。此外阳台纳入客厅抬高设计地台,一家人可以席地而坐,度过亲密的时光。低饱和度的色彩,让整个空间更加简约漂亮,一起看看装修结果吧!

原户型结构图,93㎡的两居室格局,客餐厅面积不均,为了更好的居住体验,便有了以下改造。

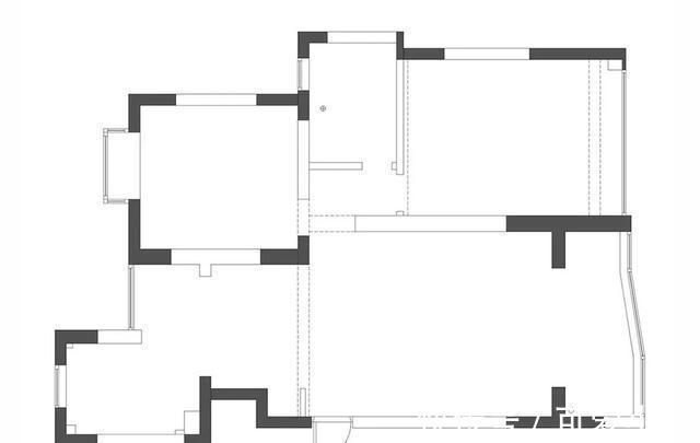
装修平面图,改造分析:
1、压缩厨房空间,拆除原有突出墙体,形成空间穿透解决了面积不均的问题;
2、原有餐厅改造成休闲空间,客厅则兼顾了会客和用餐功能;
3、客厅与主卧隔断墙拆除,前移做整面收纳柜,提高收纳能力;
4、主卧和卫生间隔墙做了改动,实现了主卧衣帽间功能。


入户没有单独的玄关区,合理利用空间结构设置鞋柜,纯白色与墙面巧妙融合,既然满足了日常基础收纳,又让空间更显整洁统一。黑板墙和洞洞板的设计,给居家生活增添了些许趣味,灰色和原木色的介入,让大白墙不单调。

黑板墙可以释放小朋友的创作天赋,又不需要担心其他墙面被涂鸦,随时都可以尽情的挥洒创作。洞洞板可谓是墙面收纳神器,颜值高使用又灵活,摆放屋主收藏的动漫手办和装饰品。


客厅简洁通透,大量的使用白色空间更敞亮,一抹灰色的点缀,成为客厅亮点,既缓和了大白墙的单调,又增添了几分文艺清新。客厅打破中规中矩的设计,不放沙发茶几,只摆了一张大餐桌,空间运用更有弹性,居家会客、日常用餐、办公学习、亲子互动都可以实现。


【 阳台|一家三口住,客厅不放沙发茶几,把阳台抬高,93㎡的家简约漂亮!】原本的餐厅,改造后变成了居家休闲空间。客厅的主角沙发,被巧妙的安排在休闲区,成为家人休憩的小角落。投影仪安装满足了居家视听娱乐,隐藏式投影幕布设计,灵活美观。


沙发后原本是厨房空间,改造后压缩了厨房,腾出的空间纳入活动范围,增设半高的吧台,给居家生活增添一些小情调。休闲区和儿童房隔墙做开窗设计,不规则造型的玻璃窗,视觉更灵动,生活也更有趣。


拆除客厅与卧室隔墙,前移设计整面电视柜,不仅收纳空间大,而且还不需要额外购买电视柜。考虑到平整与统一,通往卧室和卫生间的门,选择隐形门设计,提高视觉美感与统一。
推荐阅读
- 春节|如果能重来,阳台一定“9不装”,并非迷信,是过来人的经验教训
- 灰尘|家中阳台不要装推拉门了,装这种更实用个性,不得不感叹太聪明了
- 花花草草|10款高颜值阳台,你该看看!
- 她家148平米,进门就被玄关迷住,不做吊顶跟背景墙,阳台超漂亮
- 铝合金|封阳台不要傻傻用铝合金窗,聪明人都装这种替代,懊悔才发现!
- 占地方|家里阳台不要装推拉门了,不实用又占地方,聪明人都装这种代替
- 装修|越来越多人阳台不装推拉门了,如今流行将阳台包进客厅,太聪明了
- 阳台上|装修时当“甩手掌柜”可不行,这5处细节,再忙也要去把关验收
- 阳台|央行降息了,你能省多少房贷利息?
- 组合柜|在阳台打了一组洗衣机组合柜,邻居们看到了,表示非常羡慕
