建房子|农村自建5室1厅二层别墅, 阳光大客厅, 面宽才8米多, 真是太爽了!
宅基地小,怎样盖房才能住得宽敞?这恐怕是很多想回老家建房子的人一直在探寻的问题。好在现在在农村,各家各户可以根据自己的需求去建造自己想要的房子。今天我们来看一栋农村自建5室1厅的二层别墅,面宽还不到9米,应该适合很多家庭参考。

从一层平面图上可以看到,进入室内后,客厅和餐厅是非常宽敞的,尤其是在宽大的落地窗下,室内会十分明亮,在这种环境下会客和用餐是非常愉快的。另外,并排的卧室、储藏间和厨房使室内显得很整齐,收拾起来也很轻松。

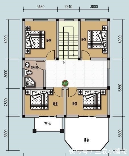
在二层平面图上,是四个大卧室和大露台及阳台。卧室大,孩子学习就可以不必设置专门的书房,直接在卧室安放书桌和书架就好,这样也便于孩子随时能取书看。

【 建房子|农村自建5室1厅二层别墅, 阳光大客厅, 面宽才8米多, 真是太爽了!】今天给大家介绍的这栋农村自建二层别墅 ,面宽不到9米,进深13米多,拥有5室1厅,却让人感到很宽敞。你觉得怎么样呢?
推荐阅读
- 楼市|房子降价对楼市而言反倒是件好事
- 购房置业|经济学家:老百姓60%的钱花在房子上很危险!网友:说得很对
- 房贷|“重启”拆迁?这2类房子或全拆重建,两类人受到影响
- 客厅|参观向华强和陈岚的豪宅,房子层高太矮了,住着不压抑吗
- 施工|面宽均为12米的两栋自建房,简单施工易,造价25万上下
- 大门|房子大门万万不能朝这地方开,师傅看了摇头,怪不得我家越住越穷
- 购房置业|为什么买房不要买靠边的房子?这些问题要注意,开发商不会告诉你
- 炒房|房子有多难卖?三线城市炒房者:降价20万送车位都卖不掉
- 建房子|面宽11米, 进深16.5米的农村三层别墅, 前后有花院还带车库, 完美!
- 购房置业|买房界的黄金法则:好房子横向要宽、纵向要薄,多面朝南
