一居室婚房大变身,50平的小空间,书房卧室一应俱全,好舒服
这所坐落在北京老胡同中的一居室,是业主的婚房。位置十分的优越,出门不远就是繁华的王府井,还有文化气息十足的东郊民巷,但是房子年代久远面积又非常的小,所以业主迫不及待的想要进行大改造,早日和爱的人一起住进这个温暖的小家中。

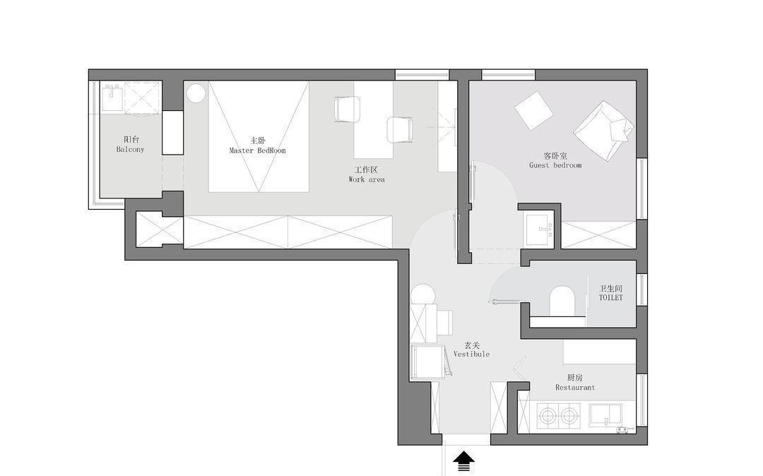
房屋户型:一室
房屋面积:50平方米
装修预算:30万
所在城市:北京
设计师:李文伟
主要建材:大理石材、烤漆玻璃、天然木皮、进口耐磨地板、特殊磁漆


原始户型:
1:厨房和卫生间的面积都比较小,功能也非常的不全,使用起来不方便的地方较多。
2:卧室占用的空间较大,没有独立的公共空间。
3:内部结构十分的陈旧,承重墙也把空间分散的特别凌乱,造成了大部分空间的浪费。

改造重点:
1:玄关走廊处增加了独立的洗漱区和嵌入式冰箱。解决卫生间,厨房面积小功能不足的问题。
2:卧室缩小面积,划分出部分空间作为公共活动区。
3:弱化结构上的不足,增设家中的收纳空间。

【玄关】


设计重点:发挥空间最大能力
玄关的面积其实并不大,但是在整个空间中起着至关重要的作用。超薄的鞋柜满足了收纳需求,简易铁艺收纳架既可以作为换鞋凳也能充当临时的置物区,丰富了玄关的层次感。

墙面上的镜柜也是隐藏的收纳区,打来之后可以摆放一些生活杂物,关上拉门又不会影响玄关的美观整洁,在视觉上还可以起到扩展空间的作用。
【厨房】


设计重点:厨具都上墙
业主平时在家会经常烹饪,所以对厨房的收纳和操作区的要求比较高,但是苦于面积不够,所以设计师巧妙地让大部分厨具都在厨房背景墙上找到合适的位置,这样使用起来也比较方便,还能留出足够的空间收纳其他物品。
【餐厅】


设计重点:功能强大空间灵魂
餐厅位于整个空间最中心的位置,紧密的连接了厨房,客厅,卧室等空间,还提供了超多的收纳区,不单单局限于一个简单的就餐区。实木餐桌餐椅搭配鱼骨拼接地板更显自然和环保,暖白色的背景墙让空间线条在无形中相连。
【卧室】


设计重点:打造简易私人套间
推荐阅读
- 上港|从上港星江湾现场发来一条项目新消息,请查看
- 屋主|56㎡小户型老房改造,小而美的设计!
- 春节|如果能重来,阳台一定“9不装”,并非迷信,是过来人的经验教训
- 装修|淋浴房还可以坐着洗澡,一开始很不理解,装修后才发现太实用了!
- 深色|155㎡简约风,承载着三代人的生活,不花哨让家务少一半
- 心塞|5个月装修一套房,硬装让我喜出望外,结果家具一上全废了!心塞
- 小钱|游点好笑!收手机的新方式,一抓一个准!这老师怕是柯南看多了?
- 厨房|一居室也能如此精彩,展现单身人士的高端生活,享受生活的乐趣
- |“最惨购房者”相关话题登热搜榜首,到底是怎么一回事?
- 武汉市自然资源和规划局|确定了!白沙洲将新添一所高中
