
第7套:双堂屋+独立柴火房,兄弟建房除了双拼,还能这样建

占地尺寸:15.68m*10.43m占地面积:168.72㎡建筑面积:419㎡建筑高度:13m建筑情况:共设9卧室 4卫生间 1柴火房 2厨房 2堂屋 2影视厅 1家庭娱乐大厅 3露台 1书房 1阳台



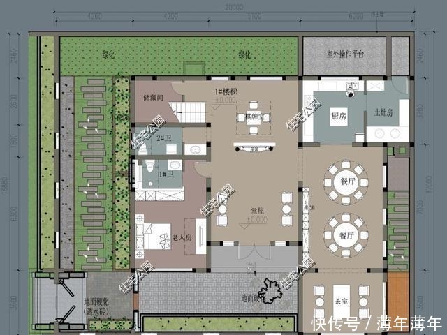
第8套:多阳台+大堂屋+土灶房,古朴中式庭院

占地尺寸:20m*16.8m占地面积(不含庭院):175.7㎡建筑面积(不含庭院):360.8㎡建筑情况:共设5室 2厅 4卫 1厨 1堂屋 1棋牌室 1茶室 1土灶房 1储藏间 1衣帽间 4阳台 1庭院


这8套别墅都非常适合农村修建,不管是外观还是户型设计,都可以说是无懈可击。但大家都说最后一套最美,中式庭院的确是最令人心驰神往的理想住宅。下面是360度全方位展示,大家觉得如何呢?

关注住宅公园,1300套图纸等着你。
推荐阅读
- 建筑|小开间农村自建房,5款开间10米的农村别墅户型,好看又实用!
- 世茂|世茂璀璨天樾,整改仍不到位!大门、水系、门外建筑垃圾一片
- 招商蛇口|总建筑面积近15万平方米,连通地铁!浦东这里将新增一大型商业综合体
- 房地产行业|农村这3类自建房算违规建筑,将面临强制拆除!
- 历史建筑|唯一住房还不起月供怎么办?
- 购房置业|中南神箭原木建筑木方是怎样有效处理的
- 建筑装饰装修工程质量验收标准|2022年正在执行的装修标准有哪些
- 香港|高层建筑“被叫停”?2022年推出“新标准”,对此你怎么看?
- 建筑垃圾管理|首开鸿城实业被行政处罚,违反建筑垃圾管理规定
- 违章建筑|买房先看楼顶,没有凸出小房子坚决不买!问了物业大叔才明白!
