今天给大家带来5款开间10米左右的农村别墅,还在纠结宅基地不够宽的朋友们可以看看哦,无一不是精品!
图纸编号:gg023
开间:10.4米
进深:11.6米
占地面积:117.20平方米
建筑面积:395平方米
层数:3层
结构形式:砖混结构
主体造价:63万左右
现代别墅简约时尚、通透大气的优点表现得淋漓尽致,给人的感官非常棒,不管是色彩搭配还是整体造型方面,都给你眼前一亮的感觉,是一款年轻人都喜欢的小别墅,散发着时尚的魅力。
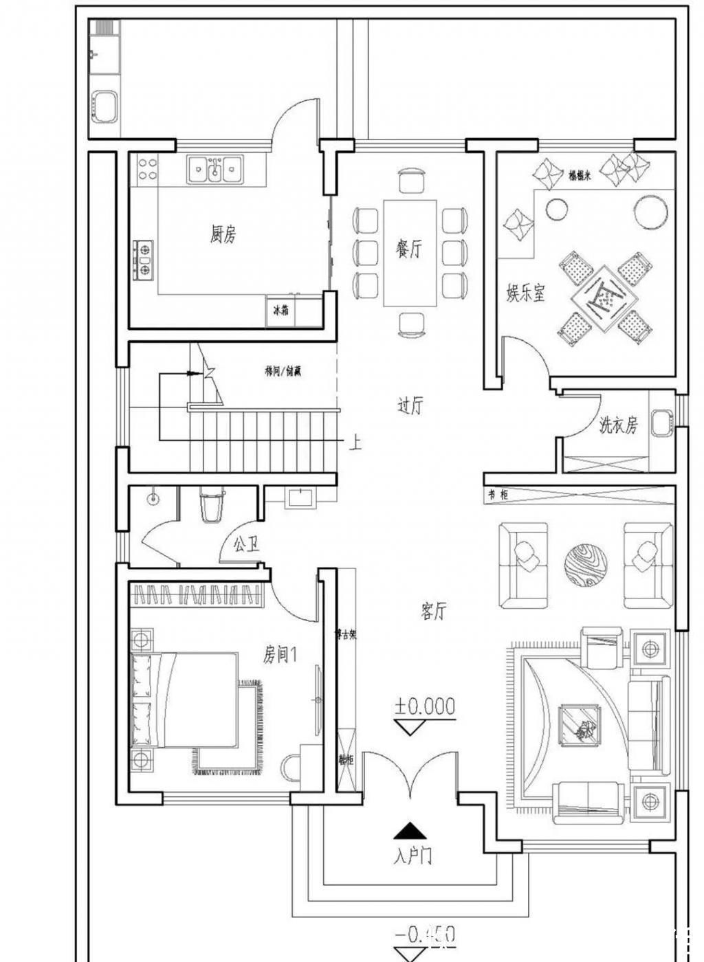
室内布局



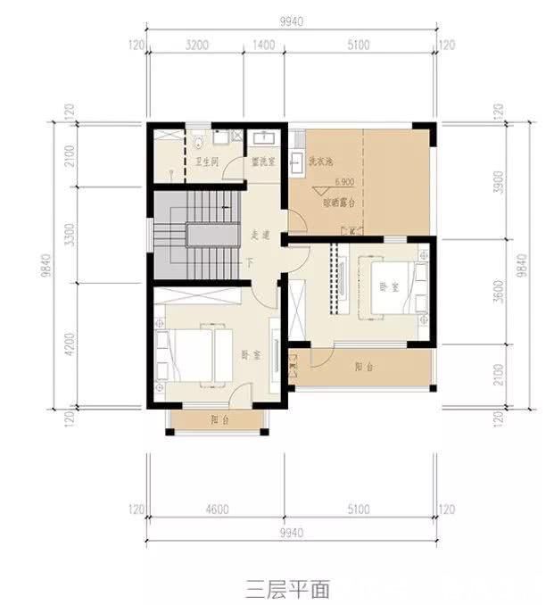
图纸编号:gg011开间:9.9米
进深:9.8米
建筑面积:370平方米
建筑层数:3层
主体造价:59万左右

本户型外观大气典雅,外墙色调优雅,充满中式纪复古的风格,线条流畅优美,让人感觉非常舒服!室内布局




图纸编号:YG625开间:10.7米
进深:13.7米
占地面积:143平方米
建筑面积:262平方米
建筑结构:砖混结构
建筑层数:2层
主体造价:39万(仅供参考)

建筑整体为欧式风格,立面底部选用文化石,以深色和石材增加稳重和质感。二层位置选用浅黄色瓷砖,配合橘红色屋顶让颜色自然过渡,使得视觉上更加连贯。室内布局


图纸编号:YG849开间:10米
进深:14米
建筑面积:373平方米
建筑结构:砖混结构
建筑层数:3层
主体造价:58万左右

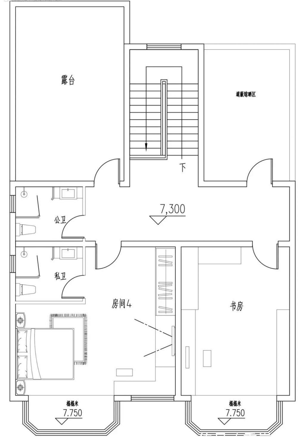
室内布局



图纸编号:YG1079开间:10.6米
进深:11.3米
建筑面积:256平方米
层数:二层
屋顶形式:坡屋顶
推荐阅读
- 屋主|56㎡小户型老房改造,小而美的设计!
- 小钱|游点好笑!收手机的新方式,一抓一个准!这老师怕是柯南看多了?
- 公示|一处体育中心项目、一处小型口袋公园!市北两项目规划公示,配套升级
- 碧桂园|小城市的房住不炒,遇上返乡置业
- 小户型|发现丈夫赠人房产 妻子怒讨买房款
- 小房间|参观140㎡大婚房,朋友都夸餐边柜有档次,我却更喜欢主卧的飘窗
- 楼层|对于买房选楼层,一旦你忽视这5件小事,就只能买到“垃圾楼层”
- 木纹板|装修案例欣赏:小北欧风格的居家设计,简洁的同时又不失温馨感!
- 二手房|拖垮你的不是高房价和高压力,而是鸡毛蒜皮,不拘小节,更自由
- 购房置业|对于买房选楼层,一旦你忽视这5件小事,就只能买到“垃圾楼层”
