装修就是要自己来做主装修出自己的个性,否则看着那千篇一律的装修,就像样板间一样,怎么都没有属于自己家的味道。日式风格体现的一种随意悠然,追求大自然的生活意境,一直深受年轻人的追捧。
今天齐家安安要分享的是一套59㎡小户型装修案例,整体装修选择日式和风设计,简洁的构造与多样的配色,营造轻松随意的生活氛围。

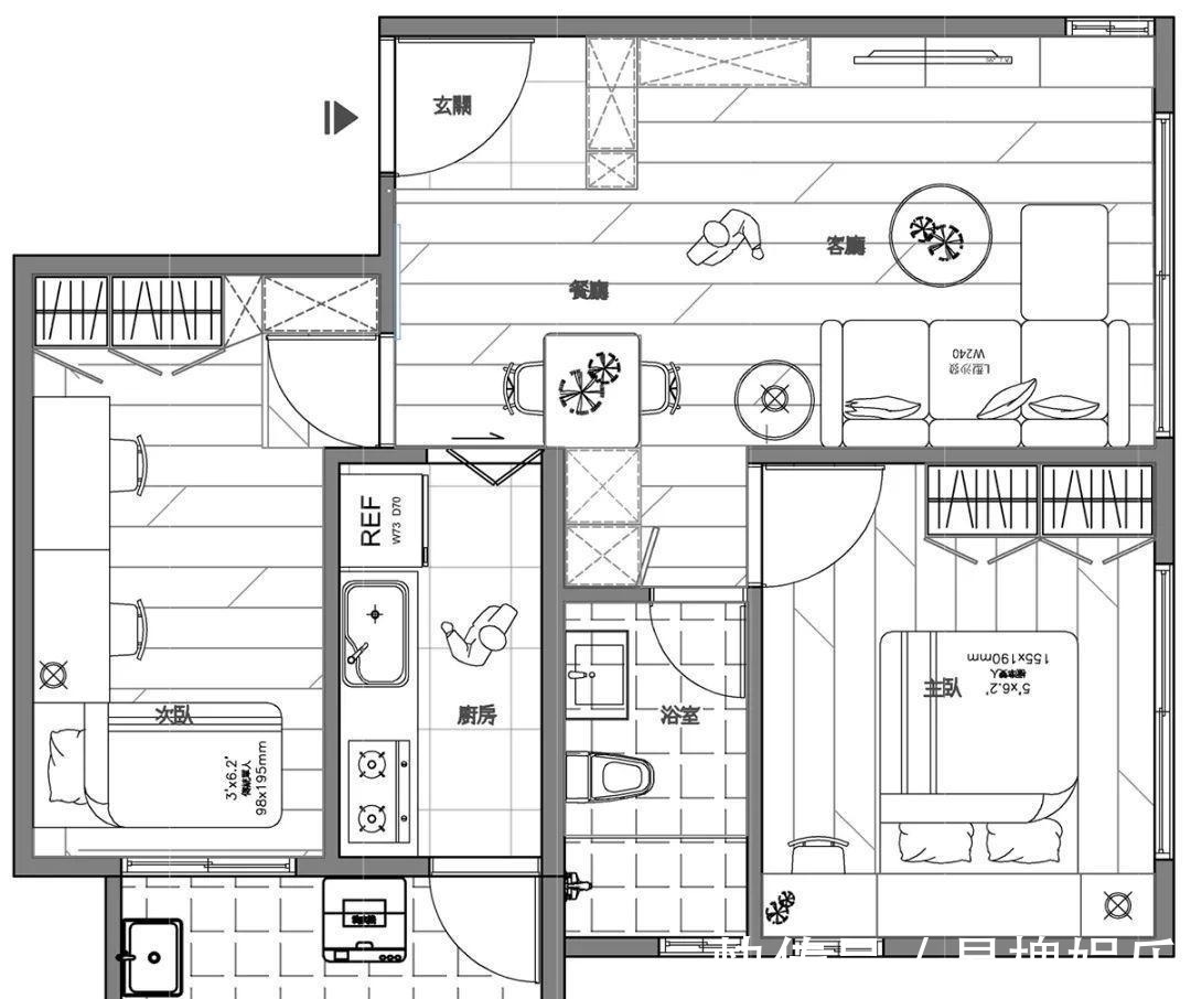
玄关,在进门正对面打造了鞋柜+长虹玻璃隔断,既有效地划分空间,还满足了收纳需求,同时不影响采光,一举三得。
客厅,电视墙定制了组合收纳柜,原木+白色的色彩搭配,藏露有序,兼具颜值与实用性。
抹茶绿的布艺沙发搭配大留白,加上无主灯设计,围塑出舒适且清新的生活环境。

进门右手边是餐厅空间,原木餐桌椅靠墙摆放,不影响入户动线。靠墙定制入墙式餐边柜,满足收纳功能的同时,不占用空间。
厨房与餐厅之间采用长虹玻璃门做隔断,材质透光不透影。

主卧定制了一体式床头,将化妆台功能也加入进去,空间的极致利用。床尾靠墙打造了一整面墙的衣柜,收纳力max!
次卧采用地台形式设计,并通过沙发床、书桌、椅子等活动家具,让空间保有弹性且多元。
(本文由齐家安安整理编辑,图片来源于网络,如有侵权请告知我们删除!
推荐阅读
- 屋主|56㎡小户型老房改造,小而美的设计!
- 现代风|168㎡现代风,带着浓郁的归属感与愉悦感
- 深色|155㎡简约风,承载着三代人的生活,不花哨让家务少一半
- 混淆感|146㎡北欧经典白色三居室,诠释令人心醉的优雅
- 饱和度|173㎡轻奢新中式,古典和现代的碰撞,唯美浪漫!
- 小钱|游点好笑!收手机的新方式,一抓一个准!这老师怕是柯南看多了?
- 背景墙|97㎡现代风,以时尚打造空间,以新颖突出特点
- 地板|160㎡四居室,玄关比我家卧室都大,这才是真正的低调奢华有内涵
- 公示|一处体育中心项目、一处小型口袋公园!市北两项目规划公示,配套升级
- 碧桂园|小城市的房住不炒,遇上返乡置业
