5平方米的浴室,也能拥有大浴缸,堪称小户型的设计模范
业主喜欢干净纯粹的颜色,也希望自己的家能够用同一色系搭配出不同的空间。设计师以户型结构下手,打通空间的同时也增加了空间的互动感,同时给一家人提供更多的沟通空间,把生活和建筑巧妙地融合在一起。

房屋户型
:两室
房屋面积:
80平方米
装修预算
:30万
设计师
:李文伟
主要建材
:线板、木皮、喷漆、大理石、黑铁漆、铁件、玻璃、木地板、壁纸

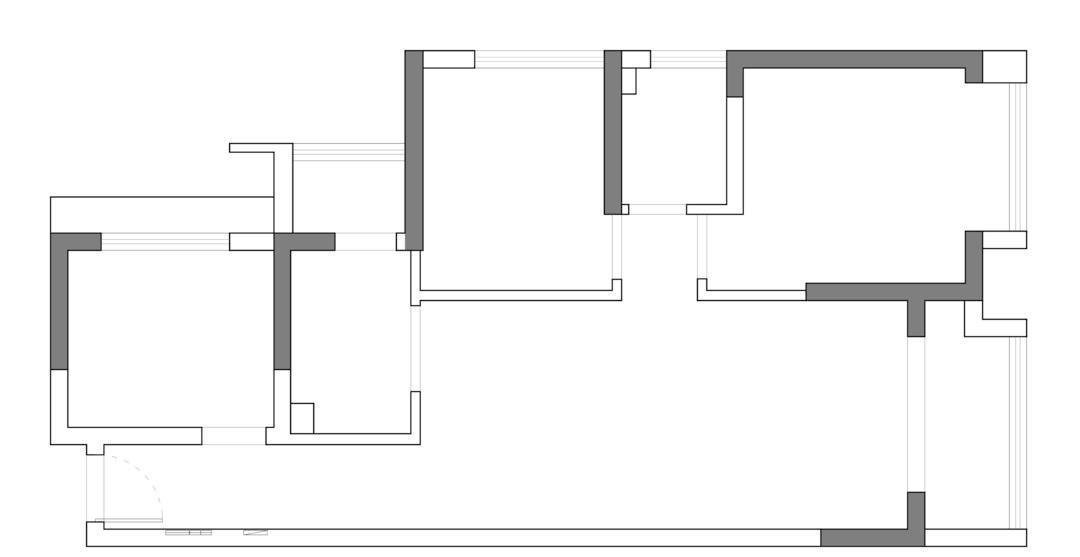
【户型图】

原始户型:
1:玄关没有足够的收纳区,鞋子只能到处乱放。
2:厨房,餐厅的互动感不强,距离较远无法满足日常的使用需求。
3:厨房的面积比较小,没有较为宽敞的操作区。
4:卫生间的功能不全面积比较局促,无法满足业主对浴缸的需求。

改造重点:
1:拆除不必要的隔断,增加大容量的储物区。
2:厨房利用走廊的面积,增加宽敞的西厨区,同时增加了实用的大型家电,满足日常的烹饪需求。
3:卧室和餐厅重新布局,保证空间的采光和实用功能。
4:增设之前缺少的娱乐休闲区。

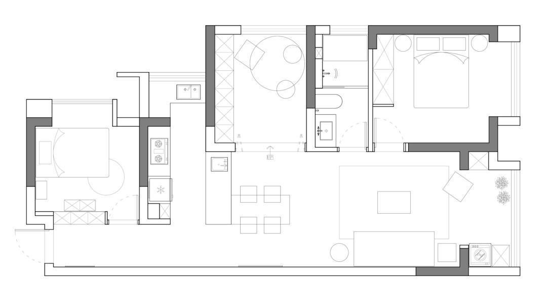
【玄关】


设计重点:打通空间,实现多重布局
玄关拆除了很多隔断,把有效的空间都紧密地联系在一起,确保空间足够宽敞大气。同时也减少了小户型的局促和压抑,增加室内活动空间的舒适感。
【厨房】


设计重点:U型布局提高空间利用率
厨房改造之后采用了宽敞的U型布局,定制的组合橱柜可以满足多样的收纳需求,也增加了便利的操作区,让烹饪流程更加的简化便利。西厨的岛台下方嵌入了大型的家电,既不会占用多余的空间又让厨房更加地整洁干练。
【餐厅】

设计重点:一体式布局增加空间灵动感
餐厅和厨房的岛台相连,增加了厨房和餐厅的沟通互动,平时在厨房烹饪美食的时候,也可以和在餐厅的家人保持互动,一家人随时都能增进感情。

餐厅对面是宽敞的娱乐区,保留的小窗引进了温暖的自然光线,确保了餐厅的采光和通风,折叠玻璃门既能保证空间彼此独立,又能随时紧密相连,享受多重的变幻魅力。
【多功能室】


设计重点:高颜值又高质量
多功能间的陈设非常简约,但是功能十分的齐全。整面墙的收纳柜可以把整个家的杂物都收好,关上柜门就是整面的暖白色,丝毫不会影响空间的美感。中间的留白空间是业主的放松区,平时可以在这里看书或者和朋友聊聊天。
推荐阅读
- 屋主|56㎡小户型老房改造,小而美的设计!
- 春节|如果能重来,阳台一定“9不装”,并非迷信,是过来人的经验教训
- 装修|乔迁新房3月以泪洗面!当初的不理智,连犯15个极品装修坑!作孽
- 现代风|168㎡现代风,带着浓郁的归属感与愉悦感
- 深色|155㎡简约风,承载着三代人的生活,不花哨让家务少一半
- 混淆感|146㎡北欧经典白色三居室,诠释令人心醉的优雅
- 造纸|生活用纸,黄卫生纸真的好于白色卫生纸吗?来听造纸员工怎么说!
- 对象|廉租房和公租房的有什么区别?
- 饱和度|173㎡轻奢新中式,古典和现代的碰撞,唯美浪漫!
- 小钱|游点好笑!收手机的新方式,一抓一个准!这老师怕是柯南看多了?
