在这套150平米的房子中,整体空间以简洁大方的现代风为设计基调,通过现代简雅的设计手法,再加入绿植的点缀装饰,让空间显得充满自然舒适的轻松气息;而玄关的镜子墙面、卧室的粉色搭配,也让空间显得更加精致舒适而时尚,居住在这个空间,你能感受到的是一种无比轻松的体验。
【 为主人|150㎡现代简约,简洁、舒适与自在,住起来应该很棒】玄关

▲过道式的玄关。空间感比较狭窄,左边与天花都以镜面材质设计,扩大了空间的视觉感;右边布置换鞋凳+壁灯组合,也让空间显得更加优雅华丽而大气。
客厅

▲客厅天花采取无主灯的设计,在四周装上了灯带,布置上现代风的米白色布艺沙发,为主人带来了一种现代舒适的体验。


▲整体空间简洁舒适为主,墙面浅淡色为主,也让空间显得更加自然惬意。

▲天花上暗藏灯带+巧妙的筒灯布局,也使得空间更加现代大气而有趣。

▲暖灰色的沙发墙,加入一幅灰色调的装饰画,并在天花上加入了筒灯装饰,也让空间显得更加有层次感。
餐厅


▲餐厅背景墙挂一面带背光的镜子,布置上现代轻奢风的餐桌椅,金属脚架、石材台面,还有暗粉色的布艺座位,后方一排白色的收纳柜,带来实用收纳的同时,也显得格外的现代大气。


▲餐桌上精致的茶具,与暗粉色餐椅相呼应,也烘托出一种时尚舒适的气息。
厨房

▲厨房在L字形的操作台空间基础,定制上现代简洁的白色橱柜,也为主人提供了一个舒适实用的厨房操作空间。

▲冰箱与洗衣机都嵌入到厨房橱柜里,在实用的基础上实现现代大方的视觉设计。
卧室

▲卧室天花以无主灯的设计、床头上方装了一个灯槽暗藏灯带;床头墙的墙脚区域加入了白色的护墙板装饰,上方是粉色的乳胶漆墙面,挂上三幅黑白色的墨意装饰画,整体灰粉色的床单布置,让卧室显得格外的现代优雅。
卫生间

▲卫生间布置白色洗手盆、马桶与浴缸,中间加入玻璃隔断,并以绿萝的装饰点缀,也让空间显得格外的清新唯美。
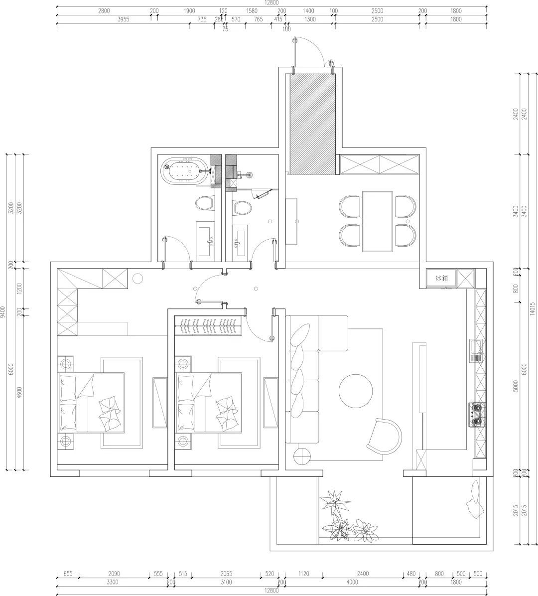
平面布置图

设计:何浚鸣 ,点评:设计馆
推荐阅读
- 大悦城|家里这两个地方别漏了贴瓷砖,许多人为了省钱,入住就后悔了
- 美好生活|欧哲门窗副总经理周志军:「拓」不忘初心同心同德,成为美好生活空间首选品牌
- 管道|为什么说:再穷也不买二层?了解这些弊端之后,就知道多糟心了!
- 文商旅|碧桂园文商旅长租公寓持续发展,为城市青年带来更舒适居住体验
- 潘石屹|许家印:潘石屹,为何你能安全下车?
- 施工|面宽均为12米的两栋自建房,简单施工易,造价25万上下
- 购房置业|为什么买房不要买靠边的房子?这些问题要注意,开发商不会告诉你
- 补发|快讯:旭辉·旭城昌泰两个楼栋补发获预售证,房源均为一楼商业
- 房产税|美国作为发达国家,他们为何不用混凝土建造房子原因很现实
- 防水|东方雨虹为何不惧地产下行?
