生而为人,我们每个人的基本生活需求其实都是一样的,再没钱,也要有个遮风挡雨的窝,窝再小,也要有能满足人类吃喝拉撒睡等生活需求的各种功能。在空间比人家的小,而生活需求一样都不比别人家少的情况下,如何合理地安排空间布局,使之既能满足实用性,又能尽量住得舒适,就显得尤为重要了。本期为大家带来的就是一套小户型的装修案例。虽然这套房子的面积才41平米,但装修效果却清爽敞亮实用得很。家里有小户型的,不妨参考一下哟。
【 套房子|他家仅41㎡,装修效果却清爽敞亮很实用,家有小户型的可以参考下】
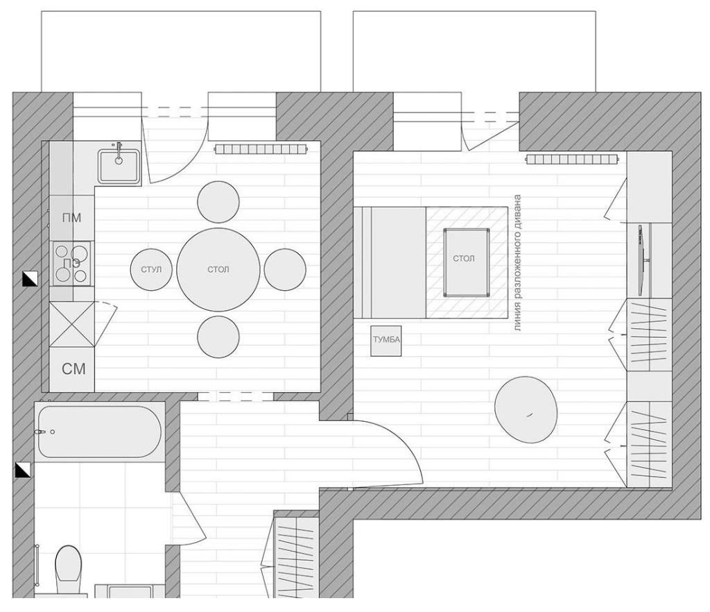
这套房子呈一个L型,整个空间被清晰地划分成了四个部分——玄关、卫生间、一体式厨餐厅以及一个灵活多变的多功能区。这个功能区既是客厅,也是卧室,也是工作区。可以说,这套房子面积虽小,但基本囊括了我们日常生活所需的各种功能。而且整个空间的设计,也很平实简单,不是那种虚头巴脑的设计,所以还是很值得借鉴的。一起来欣赏一下吧。


进门后,可以看到玄关左侧白色的墙面中藏着一扇隐形门,那是通往卫生间的,而玄关右侧则安排有一组蓝色的衣帽柜。整个玄关区的色调由白色、木色与蓝色构筑而成,一入户,便感觉十分地清爽自然。


卫生间是窄长型的,空间不算很充足,所以,屋主将洗手台和马桶都设计成了挂墙式的,这样做的好处,一是能让室内显得更敞亮一些,二是马桶水箱上省下来的空间,可以用来做储物收纳,增加实用性。再加上卫浴区内整体采用了浅色调,所以,整个空间看着还是很清爽亮堂的。

由玄关角度向前看,前方是厨餐厅,右侧是卧室兼客厅,整个空间敞亮清爽,完全没有局促压抑的感觉。

走进了看,厨餐厅是由L型厨房与圆桌相搭的,这样的设计,既实现了空间利用最大化,空间又不会显得太过拥堵,有方有圆的设计,也能使整个空间的视觉效果更圆滑,避免呆板感。
橱柜左侧的高柜里除了嵌入了烤箱和蒸箱外,还将冰箱也收纳在内了。一眼望过去,整个厨房操作区看着格外地清爽整洁。

餐桌是实木材质的,朴素自然却很温暖,餐厅侧面的背景墙上,还装了两盏简洁的壁灯,既装饰了单调的大白墙,晚上灯光亮起时,又能营造温馨的居室氛围。



多功能区内安排了一张单人沙发和一张双人沙发,两个沙发,都是可以展开的。白天,这里就作为正常的客厅使,休闲娱乐、招待朋友,都可以。晚上睡觉时,将沙发展开,就会变成一张标准的双人床,这里立即就成为一个完全独立且私密的卧室了。
推荐阅读
- 心塞|5个月装修一套房,硬装让我喜出望外,结果家具一上全废了!心塞
- 楼市|房子降价对楼市而言反倒是件好事
- 购房置业|经济学家:老百姓60%的钱花在房子上很危险!网友:说得很对
- 房贷|“重启”拆迁?这2类房子或全拆重建,两类人受到影响
- 客厅|参观向华强和陈岚的豪宅,房子层高太矮了,住着不压抑吗
- 疯狂|1月20日广州新房网签210套,增城以43套再次蝉联榜首!势头强劲!
- 二手房|12月交楼37899套,恒大居然复活了
- 大门|房子大门万万不能朝这地方开,师傅看了摇头,怪不得我家越住越穷
- 购房置业|为什么买房不要买靠边的房子?这些问题要注意,开发商不会告诉你
- 公示|一处体育中心项目、一处小型口袋公园!市北两项目规划公示,配套升级
