玄关|这是我见过最小的户型,全屋不到30平米,完工后火遍全小区
随着房价的上涨,越来越多人买房时都选择小户型新房!其一小户型面积不大,所需的装修和购房预算少,其次小户型内部空间小,生活中清洁全屋花费的时间也少。但通常我们印象中的小户型也有50~60平米左右,那么全屋不到30平米的户型你见过吗?
30平米是什么概念呢?或许对一些大点的户型而言,30平米就是一个阳台的大小,但就是这样小的一套新房,完工后却火遍了整个小区!全屋小巧精致,样样俱全堪称小户型设计的“典范”。

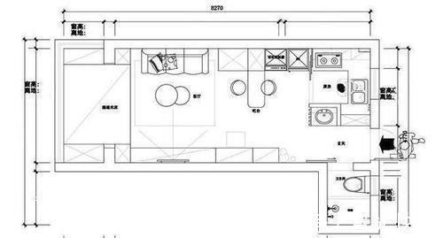
如图所示,从入户到阳台的进深只有8.2m左右,但却依次布置了厨房、吧台、客厅及卧室多个使用空间。屋主将厨房和卫生间布置在了入户两侧,内部空间利用到了极致,装修非常的大气美观!下面一起来看看实景照片吧。
【 玄关|这是我见过最小的户型,全屋不到30平米,完工后火遍全小区】入户玄关

入户玄关是进入家里的第一空间,所以收纳和换鞋区是必不可少的!本案例玄关的储物区设计在右侧,鞋柜采用嵌入式设计,上部是封闭式柜门储物区底部留空设计置物架,既美化了空间又留宽了过道,以白色为主的色彩搭配也增添了几分明亮感。

顺着玄关往里走,整个房间的布局一览无遗!正对入户左侧是电视墙和餐边柜,右侧依次设计了吧台、沙发区和卧室区。小巧的空间得到了充分利用,虽然布局紧凑,但各种使用功能齐全,能满足基本的生活所需。

来看右侧的吧台和储物柜,吧台是折叠式设计,平时可以隐藏到柜体内为厨房到客厅留出过道,需要时将台面放下来就能代替餐桌,一举多得!

吧台右侧有一个小巧的客厅,客厅装饰十分素雅,以白色为主搭配小体量的家具和平顶,让整个空间看上去更显宽敞!客厅背景墙造型简单,墙面通刷大白墙,将通透明亮的气质体现得淋漓尽致。客厅电视柜和沙发中间铺放了地毯,尽显小清新风格。

厨房内布局也很简洁,墙面地面通铺白色瓷砖,搭配瓷白色吊柜和橱柜,将简约风整洁休闲的气质展露无余!虽然厨房空间小,但洗切炒的动线布局依然明朗,L形吊柜和橱柜也带来了充足的收纳区,让日常使用更加方便。


客厅外面的区域布置成了休息室,由于空间较小又需要同时满足收纳和使用需求!所以巧妙地用组合式榻榻米设计代替床+衣柜,榻榻米内部可以储物,台面又能作为休息区、娱乐区和观景区使用。这个区域临窗,平时光照充足夜晚躺在床上就能看到星空,非常的惬意。

推荐阅读
- 施工者|不管家多大,装修时做好这12处细节,美观与舒适并存,幸福感提升
- 大悦城|家里这两个地方别漏了贴瓷砖,许多人为了省钱,入住就后悔了
- 贷款|5月起,“2道铁令”,今后这1种买房方式再也行不通了
- 灰尘|家中阳台不要装推拉门了,装这种更实用个性,不得不感叹太聪明了
- 管道|为什么说:再穷也不买二层?了解这些弊端之后,就知道多糟心了!
- 小钱|游点好笑!收手机的新方式,一抓一个准!这老师怕是柯南看多了?
- 餐边柜要做成什么样子才实用又好看看看这几款餐边柜设计
- 集体经济|征拆赔款找,查了才知有这么“多”…
- 房贷|“重启”拆迁?这2类房子或全拆重建,两类人受到影响
- 万科|首付745万的房没了还要赔500万!买二手房签合同时注意这8个细节
