深色|四房里三代人的生活,155㎡简约不花哨,能让家务少一半
一个三代同堂的大家庭,不同的年龄层次,对应着不同的生活诉求。老人的环境要温馨安逸,生活动线要简单高效;屋主夫妻俩要有衣帽间,独立卫生间可是少不了;孩子也需要属于自己的小天地,学习玩耍两相宜;那该如何设计呢?不妨参考一下这套155㎡四房两厅的装修案例。
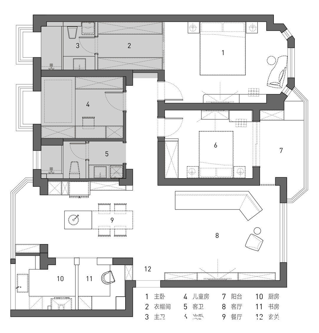
原始结构图● 业主诉求1、在进门处增加玄关储物柜,让玄关空间利用率更高;2、打造中式厨房和西式厨房,满足不同的烹饪需求;3、合理地利用卫生间的空间,对卫生间进行干湿分离;4、为主卧增加一个衣帽间,打造主卧+衣帽间+主卫的组合空间。
装修布置图● 设计说明1、减薄墙壁,打造嵌入式玄关储物柜,把大面积的完整墙面留给电视背景墙。2、重新分隔封闭式厨房,分成活动室和多功能房,利用餐厅空间打造西厨餐厅;3、敲除洗手间墙面,利用过道空间,将洗衣机干衣机和浴室柜台盆设置在这里;4、重构与主卧相连的两个空间的划分,让衣帽间和主卫的面积位置更加合理。
玄关设计入户门紧挨电视背景墙,这给玄关储物设置了难题。还好在入户门的另一侧有一堵窄墙,为玄关储物柜提供了宝贵的空间。设计了一组嵌入式储物鞋柜,以保证玄关日常收纳。

客厅设计客餐厅是空间设计核心,客厅与开放式餐厨空间相连,成为了一体化的超大空间。无主灯的设计让客厅更为整洁大气。取消了茶几的布置,让空间更显宽敞。

取消复杂电视墙设计,直接定制电视柜,柜门采用纯白门板+玻璃门板的组合,木质的温和玻璃的通透,是不同材质在同一柜体上的“偶遇”。

担心纯白墙面太过素净,而一段原木饰面板则调和这种单调,通过主卧阳台的隐形门也藏匿其中。四人位沙发,搭配一旁的棕色单人沙发椅,胜任家庭小聚会不在话下。
餐厅设计餐厅是一个家非常重要的组成部分,核心的功能是就餐和餐厅收纳。餐厅的完整墙面作为餐边储物柜的空间,地柜吊柜形成的台面空间,可以容纳小厨电,轻松变身水吧台。而高柜除了储物也能容纳冰箱和嵌入式电器。
中岛+餐桌的组合形式,可以承担一部分西厨的功能。餐桌实木桌面呼应了全屋风格,皮革餐椅质感很棒和整体很搭。餐厅墙面采用原木饰面板装饰,同时藏着通往封中式厨房、以及通往活动室的隐形门
【 深色|四房里三代人的生活,155㎡简约不花哨,能让家务少一半】
推荐阅读
- 深色|155㎡简约风,承载着三代人的生活,不花哨让家务少一半
- 地板|160㎡四居室,玄关比我家卧室都大,这才是真正的低调奢华有内涵
- 攀枝花|2.75亿元!四川攀枝花拍卖了两块土地使用权
- 购房置业|呼市人为什么这么期待第四代万达广场—城南万达广场
- 限购|没钱买洋房,只好买两梯四户带连廊房的,该如何选择呢?
- 洗衣房|这三款农村四合院设计图让不少城里人羡慕,父母看了也欢喜
- 购房置业|农村建新房就选这套四层别墅,占地100多平,8间卧室人人都有地睡
- 购房置业|三四线城市的住房真的值得购买吗?不能一概而论,还是有升值空间
- 小知识|农村建新房就选这套四层别墅,占地100多平,8间卧室人人都有地睡
- 校地|“拎包入住”!四川大学院士公寓交付使用
