隔断|为方便上班,她买下38㎡老房,改造后满足5口人居住,佩服!
本案屋主家的情况,应该和很多朋友家类似,就是为了提高生活的便捷性,在公司附近重新买一套房用来过度居住,这样既方便了平时上班,也方便了照顾家庭。同时,为了缓解自己的经济压力,小户型老房应该也是第一的选择。
比如这位屋主就买下了一套实用面积仅有38㎡的老房,虽说面积很小,但在空间设计上,却需要满足全家5口人居住。毕竟孩子还小,再加上夫妻平时要上班,得把父母接过来同住,以方便照看孩子。当然,从改造后的效果来看,也确实让人佩服,很值得大家来学习。
【 隔断|为方便上班,她买下38㎡老房,改造后满足5口人居住,佩服!】原始结构图
原户型为两室一厅的格局,虽说结构非常工整,但不管是厨房、卫生间、还是卧室的使用面积,都非常有限。再加上小户型普遍存在的收纳问题,以及屋主想给孩子更多的玩耍空间,所以如何来做合理的空间规划,也是需要作为设计重点来考虑的。
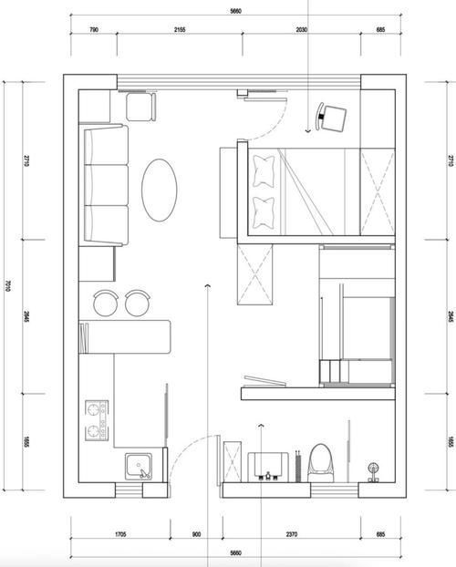
平面方案图
结合屋主的需求,空间布局改造如下。
1、卫生间采用干湿分离的结构来设计,以尽可能提高空间使用率。
2、厨房向客厅扩大,并采用半封闭结构来设计,从而自然规划出一块玄关区。
3、主次卧向客厅扩大30公分,以提高内部的使用面积,并且以半开放式来定位次卧。
4、客厅功能正常保留,为父母及孩子预留出一块娱乐、玩耍的空间。
原室内情况
改造前的室内,基本上和普通的出租房没有什么区别,存在老旧潮湿、采光通风差、空间布局不合理等多个问题。
玄关
当厨房空间扩大之后,入户自然形成了一块玄关通道,让空间动线有了迂回。地面铺上水磨石、墙面以留白为主,既有了不错的采光,也可以起到进门留尘的作用,从而方便生活卫生清理。
鞋柜则以上下分体式结构设计在了右手边,以满足日常的收纳需求。同时,该鞋柜还承担了卫生间隔断的作用。
厨房
重新规划的厨房,采用双面玻璃来隔断,既保证了空间的通透性,也形成了开合结构。橱柜采用L形结构来设计,再搭配上转角处的吧台,极大地提高了空间使用率。
虽说厨房可以实现全封闭结构,但考虑到空间面积比较小,所以还是配置了集成灶,以最大化降低油烟问题所带来的影响。同时,带有烘干功能的洗衣机,也藏在了橱柜中。
厨房侧面的玻璃窗为折叠结构,打开后可以实现全通透的效果。而转角吧台配置,既弥补了厨房的操作台空间,也兼具了生活用餐需求。
可能有的朋友会有疑问,就是在家里有5口人的情况下,仅依靠吧台来解决用餐需求,会不会不够用。事实上,在正常生活中,家里只有父母与孩子,所以日常用餐完全是可以满足的。况且,客厅高脚茶几配置,也兼具了用餐功能。
卫生间
推荐阅读
- 大悦城|家里这两个地方别漏了贴瓷砖,许多人为了省钱,入住就后悔了
- 美好生活|欧哲门窗副总经理周志军:「拓」不忘初心同心同德,成为美好生活空间首选品牌
- 管道|为什么说:再穷也不买二层?了解这些弊端之后,就知道多糟心了!
- 文商旅|碧桂园文商旅长租公寓持续发展,为城市青年带来更舒适居住体验
- 潘石屹|许家印:潘石屹,为何你能安全下车?
- 施工|面宽均为12米的两栋自建房,简单施工易,造价25万上下
- 购房置业|为什么买房不要买靠边的房子?这些问题要注意,开发商不会告诉你
- 补发|快讯:旭辉·旭城昌泰两个楼栋补发获预售证,房源均为一楼商业
- 房产税|美国作为发达国家,他们为何不用混凝土建造房子原因很现实
- 防水|东方雨虹为何不惧地产下行?
