装修|70㎡小两房,一进玄关就被迷住,做刚需房太合适了,实用又漂亮!
我和老公是一对很普通的九零后小夫妻,同大多数人一样,我们家境一般,上的大学也一般,毕业后找的工作,更是跟高大上沾不上边。要结婚的时候,得双方父母鼎力资助,给我俩在我们工作的城市置办下了一套实用面积为70㎡的小两房。几个长辈对我们倒也没什么太高的要求,只希望我俩能够踏踏实实安定下来,该上班时上班,该休息时休息,该生娃时生娃,一辈子能够无风无雨平平淡淡度过就好。这大概也是全天下父母的心愿吧。房子钥匙拿到以后,装修的事,就我和老公两人自己做主了,找的他一个同事的老公帮我们设计装修的。毕竟同事一场,彼此知根知底,也更懂得我们的需求。知道我们是作为刚需用房来装的,所以整个装修,直接排除了浮夸繁杂的设计,而是考虑以简洁实用为主。装修完工后,我和老公都挺满意的,特别是第一次推门进去的时候,一进玄关就被迷住了,实用又漂亮,做刚需房实在太合适了。特地发上来,给同我们境况差不多的同学们作下参考哈。
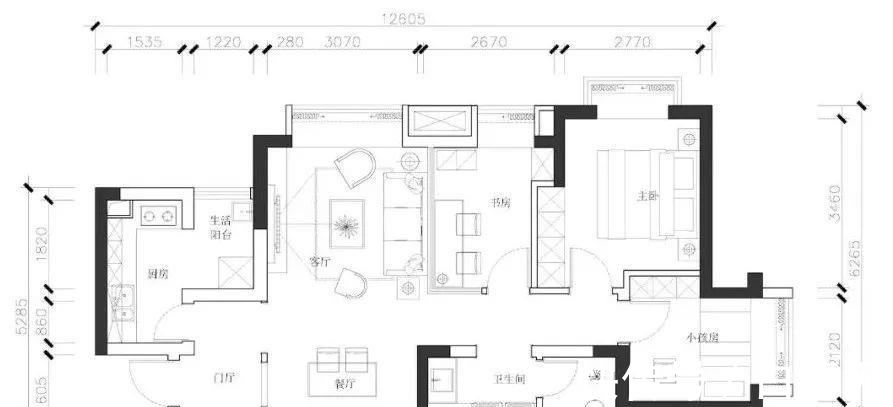
因为这个楼盘本来就是针对刚需用户的,所以户型设计得还挺紧凑的,大家可以对比户型图来看看实际的装修效果。


走到玄关处,第一眼就会注意到正对面隔断墙上开着的一个方窗,造型仿若画框一般,让你不由自主就想去一探画中的究竟,非常吸引人。而玄关右手边,则是挂衣区和换鞋区。



餐厅这边的设计,我特别满意,三面背景墙,各有各的特色,实用又漂亮,与餐桌椅也是特别的搭。卡座与收纳柜相结合的这一面墙,更是将空间利用得恰到好处,大大增加了家里的储物空间。有人从门口经过,能从窗口看到餐厅里的生活场景,就像在看画中人一般,特别有生活情趣。

L型的橱柜,是按照厨房的空间走向布局的,既能提供充足的储物和操作空间,也不会让室内显得太过拥挤,整体的白色系,看着也比较干净清爽。
【 装修|70㎡小两房,一进玄关就被迷住,做刚需房太合适了,实用又漂亮!】



推荐阅读
- 屋主|56㎡小户型老房改造,小而美的设计!
- 装修|乔迁新房3月以泪洗面!当初的不理智,连犯15个极品装修坑!作孽
- 现代风|168㎡现代风,带着浓郁的归属感与愉悦感
- 装修|淋浴房还可以坐着洗澡,一开始很不理解,装修后才发现太实用了!
- 施工者|不管家多大,装修时做好这12处细节,美观与舒适并存,幸福感提升
- 深色|155㎡简约风,承载着三代人的生活,不花哨让家务少一半
- 混淆感|146㎡北欧经典白色三居室,诠释令人心醉的优雅
- 饱和度|173㎡轻奢新中式,古典和现代的碰撞,唯美浪漫!
- 心塞|5个月装修一套房,硬装让我喜出望外,结果家具一上全废了!心塞
- 背景墙|97㎡现代风,以时尚打造空间,以新颖突出特点
