主体|建两层的别墅 这8款户型, 庄重大气, 能建一栋能吹一辈子( 二 )

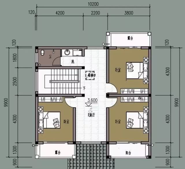
二层户型设计:主卧、起居室、卧室x2、书房、卫生间、阳台
7
基本信息
占地尺寸:10.2米x9.9米
占地面积:106.25平方
建筑面积:206平方米
主体结构:装配式轻钢结构
功能布局
一层设计有一室一厅一厨2卫
二层设计有3室1厅1卫,总共4间卧室
8
基本信息
占地尺寸:11.4米X12.9米
占地面积:130平方米
建筑面积:220平方米
主体结构:装配式轻钢结构
功能布局
一层设有:客厅、厨房、餐厅、2卧室、2卫生间
二层设有:3卧室、2卫生间、阳台
推荐阅读
- 房贷|“重启”拆迁?这2类房子或全拆重建,两类人受到影响
- 施工|面宽均为12米的两栋自建房,简单施工易,造价25万上下
- 建房子|面宽11米, 进深16.5米的农村三层别墅, 前后有花院还带车库, 完美!
- 房产税|美国作为发达国家,他们为何不用混凝土建造房子原因很现实
- 净利率|低盈利质量、票据违约,中南建设怎么了?
- 住建部|高层“停建”?已明确:2022年按“新规定”处理,两类住房遭疯抢
- 修建|精选10套三层户型图纸,占地面积均不足百平,尤其适合新农村修建
- 敏华控股|定制快讯|敏华墨西哥购置33.9万㎡土地建厂
- 购房置业|农村建新房就选这套四层别墅,占地100多平,8间卧室人人都有地睡
- |2022年,成都买房5点建议值得收藏
