建房子|晒晒我家和屋后邻居家的别墅,一栋小复式,另一栋是数百万的庄园!
以前农村老家盖房子的多是家里的房子破旧到没法住人了才考虑说要栋新房子,但是现在建房子不仅仅是满足居住的需要,更多的是要求心灵上和精神层面上的需要,而我建房子喜欢复式楼,所以就有了下面这栋房子。这是我家的四层别墅,面宽比较小,进深大,造型和外装都比较的简单。
而这栋占地面积大,别墅气派又有大庭院规划的豪宅,就是屋后邻居家的,豪华程度堪比古代的豪门大院。
来说说我家房子的建造过程吧,这里做了一个简易的效果图。
基础是使用的独立基础,做承台柱,基础做完包括人工费用一起花了8万多。
完工后的基础进行泥土回填再混凝土现浇一层地面。
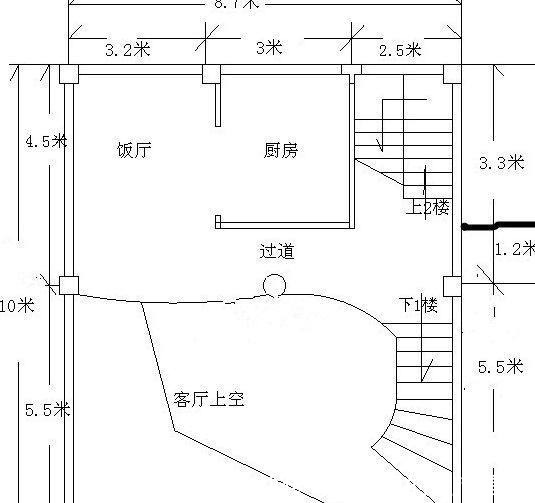
一层平面图:客厅挑空。
二层平面图:一层
【 建房子|晒晒我家和屋后邻居家的别墅,一栋小复式,另一栋是数百万的庄园!】
主体框架结构,这栋房子的建造在农村自建房中来说算是比较规范的了。
两栋别墅,完全不一样的风格,要说豪华肯定还是邻居家的,首先这个宅基地就没有人家那么大的优势。
推荐阅读
- 楼市|房子降价对楼市而言反倒是件好事
- 购房置业|经济学家:老百姓60%的钱花在房子上很危险!网友:说得很对
- 房贷|“重启”拆迁?这2类房子或全拆重建,两类人受到影响
- 客厅|参观向华强和陈岚的豪宅,房子层高太矮了,住着不压抑吗
- 施工|面宽均为12米的两栋自建房,简单施工易,造价25万上下
- 大门|房子大门万万不能朝这地方开,师傅看了摇头,怪不得我家越住越穷
- 购房置业|为什么买房不要买靠边的房子?这些问题要注意,开发商不会告诉你
- 炒房|房子有多难卖?三线城市炒房者:降价20万送车位都卖不掉
- 建房子|面宽11米, 进深16.5米的农村三层别墅, 前后有花院还带车库, 完美!
- 购房置业|买房界的黄金法则:好房子横向要宽、纵向要薄,多面朝南
