衣帽间|150㎡的豪宅,只有一间小卧室,网友:有钱任性?
可能你觉得150㎡的房子已足够大,可这个时尚女子,觉得自己住着150㎡的豪宅,仍感觉到空间不够,只能设计一个小卧室。
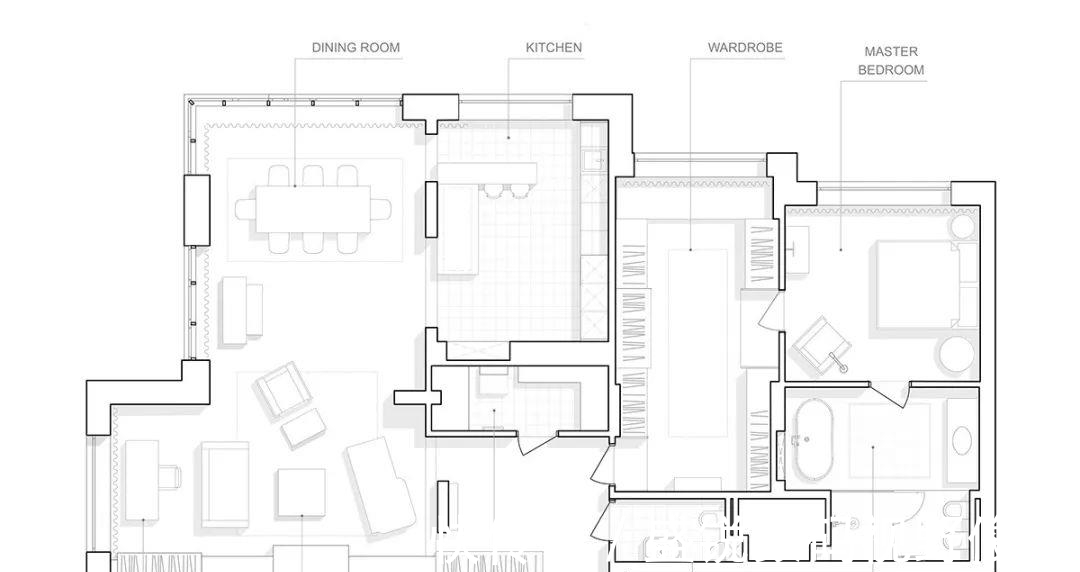
从平面图上看,150㎡的房子只设计了一个卧室,公共生活空间的玄关、客厅、餐厅、厨房占用了大部分的面积,私密区的卧室较小,在最深处,需经过一个大衣帽间进入。这个设计想法有点奇葩!
一进入玄关就能感觉空间很宽阔,有大面积的储物柜,一面镜墙搭配桌凳,空间虽然看上去简单质朴,但是让人一进门就很放松。
客厅采用对称式的设计,中间一个壁炉、一台电视机,两侧是大型的开放式书柜,还有两旁的镜子,红白对比的沙发中间采用绿色茶几来平衡,色调和谐时尚,有一种别样的质感。


厨房中有一个独立的岛台,空间也很阔绰,地面泛着光泽的瓷砖,深浅对比的橱柜,让每一处都有着独特魅力。

纯铜的水龙头与冰箱拉手,有一种复古风,很高大上的感觉。
厨房的两边都设计有入口,形成一个回字形,让整个空间动线很流畅,行动舒适。

餐厅非常大气,采光也很好,长形的餐桌搭配上时尚的八张餐椅,再加上顶部的灯光组合,与地面的地毯,渲染出很好的用餐氛围。


卧室的面积相对较小,也是屋主认为空间不太够的原因,卧室内的地板采用鱼骨拼接,墙面没有过多的装饰,只用线条来修饰,让人更感自然舒适。

圆形床头柜与地面的材质极为相近,上面摆放着鲜花与造型别致的台灯,很有韵味。

【 衣帽间|150㎡的豪宅,只有一间小卧室,网友:有钱任性?】床尾靠窗摆放了一个白色储物柜,鲜花、挂画、壁灯,很有情调的角落。
在入卧室的墙角还摆放了一张绿色休闲沙发,搭配一个小落地灯,可以在此休息与阅读。
推荐阅读
- 屋主|56㎡小户型老房改造,小而美的设计!
- 现代风|168㎡现代风,带着浓郁的归属感与愉悦感
- 深色|155㎡简约风,承载着三代人的生活,不花哨让家务少一半
- 混淆感|146㎡北欧经典白色三居室,诠释令人心醉的优雅
- 饱和度|173㎡轻奢新中式,古典和现代的碰撞,唯美浪漫!
- 背景墙|97㎡现代风,以时尚打造空间,以新颖突出特点
- 地板|160㎡四居室,玄关比我家卧室都大,这才是真正的低调奢华有内涵
- 棚户区改造|开盘预告|合肥又有6盘要加推,均价1.39-2.54万/㎡全都有
- 小房间|参观140㎡大婚房,朋友都夸餐边柜有档次,我却更喜欢主卧的飘窗
- |73㎡复古风两居室,年轻夫妻的高品质生活
