红面砖|小面宽设计的农村别墅,红面砖装饰不显俗气,造价30万每栋!
小面宽设计的农村别墅,红面砖装饰不显俗气,造价30万每栋。红色是一个比较好搭配的色调,同时也是一个不好掌控的元素,主要看怎么搭,下面两款小面宽设计的农村别墅,第一栋用红色搭配黄色,一点也不俗气,每栋别墅的主体造价30万左右。户型一:8.82×13.22,外墙面用棕色文化石、红色面砖、黄色真石漆和一些构件装饰,斜屋面处配红色的釉面瓷瓦和一个老虎窗。
布局说明:一层有堂屋,一室两厅一厨两卫,配三跑式楼梯,二层三室一厅两卫,室外配生活阳台,三层两室两卫,室外为观景露台和凉亭。


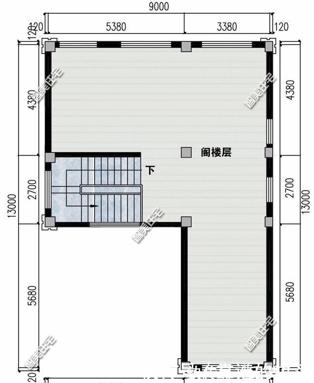
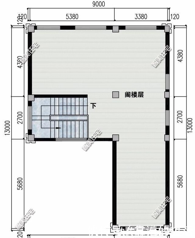
户型二:9×14.2,大门居中,外墙面用米黄色的真石漆装饰,配一扇大窗,斜屋面处配蓝灰色的釉面瓷瓦。
布局说明:一层南北通透,配父母房,一室两厅一厨一卫,同样有客厅和休闲厅,二层三室一厅两卫,主卧室带独卫,三层一间豪华配置的主卧室和一间备用客卧,室外为观景大露台。


【 红面砖|小面宽设计的农村别墅,红面砖装饰不显俗气,造价30万每栋!】
两款户型的外墙面装饰材料,都用到黄色的真石漆涂料,可见,这种材料在别墅外观装饰上运用非常广泛。小面宽设计的农村别墅,红面砖装饰不显俗气,造价30万每栋。
推荐阅读
- 屋主|56㎡小户型老房改造,小而美的设计!
- 小钱|游点好笑!收手机的新方式,一抓一个准!这老师怕是柯南看多了?
- 家具|家具展厅30余万红木家具被盗,嫌疑人竟是高学历海外留学生
- 公示|一处体育中心项目、一处小型口袋公园!市北两项目规划公示,配套升级
- 碧桂园|小城市的房住不炒,遇上返乡置业
- 小户型|发现丈夫赠人房产 妻子怒讨买房款
- 小房间|参观140㎡大婚房,朋友都夸餐边柜有档次,我却更喜欢主卧的飘窗
- 楼层|对于买房选楼层,一旦你忽视这5件小事,就只能买到“垃圾楼层”
- 木纹板|装修案例欣赏:小北欧风格的居家设计,简洁的同时又不失温馨感!
- 深圳市|条件真的太差了!全红婵家就有3间红砖瓦房,住的楼房都是别人的
