清透|560平方米的美式大别墅,观光电梯上下楼,享受绝佳观景体验
560平方米的美式大别墅,观光电梯上下楼,享受绝佳观景体验
美式风格用它的自由浪漫吸引着人们,它包含了美式的热情,用华丽夸张的元素尽情的展现对生活的炙热。它也充满了自由奔放,空间中可以弥漫着西式的独特魅力。
房屋户型:别墅
房屋面积:560平方米
装修预算:50万
设计师:李文伟
主要建材:线板、木皮、喷漆、大理石、黑铁漆、铁件、玻璃、木地板、壁纸
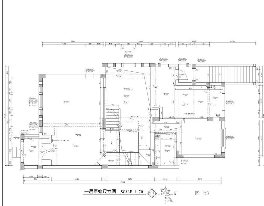
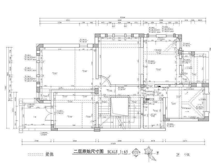
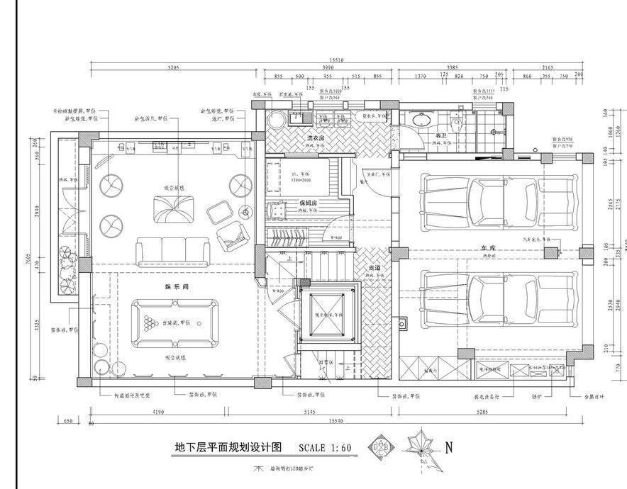
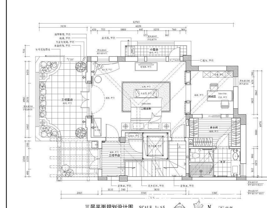
【户型图】
地下的户型主要设计成业主家的停车位,上一层则是娱乐区,这样不仅可以有效地利用空间,还能增强采光。
二层主要是招待客人的卧室区,超高挑高可以凸显空间的宽敞明亮。三层则是业主专属的休息区,改造之后打造成套间模式,不仅有书房还有更衣区。
编辑搜图
因为房屋整体面积比较大,从地下一层到阁楼,设计师按层进行设计改造,优化空间动线,打造最适宜的空间布局。解决之前存在的一些不便,让空间增强紧密联系的同时,也方便了业主日常的生活出行。
编辑搜图
改造之后的一层和二层扩大了生活区面积,还额外增加了起居室,可以让家人共同使用。同时侧重于老人房的改造,结合日常老人的生活习惯,打造一个功能齐全又舒适宽敞的老人房。
编辑搜图
业主喜欢整洁有序的空间,所以设计师利用三层的阁楼,打造大容量的收纳区,方便业主日常整理收纳。
【玄关】
编辑搜图
设计重点:改善玄关使用功能
玄关区增设了一个超大的储物柜和换鞋区,换鞋凳上方可以悬挂衣物,下方可以收纳平时的鞋子,整洁又宽敞。
【客厅】
编辑搜图
编辑搜图
设计重点:美式元素营造自由风
进入客厅可以看到颜色鲜明的各种家具和摆件,壁炉,花鸟,碎花等都把美式的风情展现了出来。
编辑搜图
编辑搜图
即使在看不见的角落里,设计师也细心地填满了空间,让客厅的休闲感更加浓郁。
编辑搜图
软装上的设计是客厅的亮点,即使是一个小小的挂钩都是设计师精心挑选的,让美贯穿在空间的每一个角落里。
编辑搜图
编辑搜图
二楼也依旧有一个美式壁炉,红砖堆砌的壁炉让人的思绪也飞到了浪漫的国外,有了它空间立马丰满了起来。
编辑搜图
推荐阅读
- 屋主|56㎡小户型老房改造,小而美的设计!
- 春节|如果能重来,阳台一定“9不装”,并非迷信,是过来人的经验教训
- 装修|乔迁新房3月以泪洗面!当初的不理智,连犯15个极品装修坑!作孽
- 现代风|168㎡现代风,带着浓郁的归属感与愉悦感
- 深色|155㎡简约风,承载着三代人的生活,不花哨让家务少一半
- 混淆感|146㎡北欧经典白色三居室,诠释令人心醉的优雅
- 造纸|生活用纸,黄卫生纸真的好于白色卫生纸吗?来听造纸员工怎么说!
- 对象|廉租房和公租房的有什么区别?
- 饱和度|173㎡轻奢新中式,古典和现代的碰撞,唯美浪漫!
- 小钱|游点好笑!收手机的新方式,一抓一个准!这老师怕是柯南看多了?
