房子|房子人人都能建得起,但豪宅并不是,这是一种财力的象征!
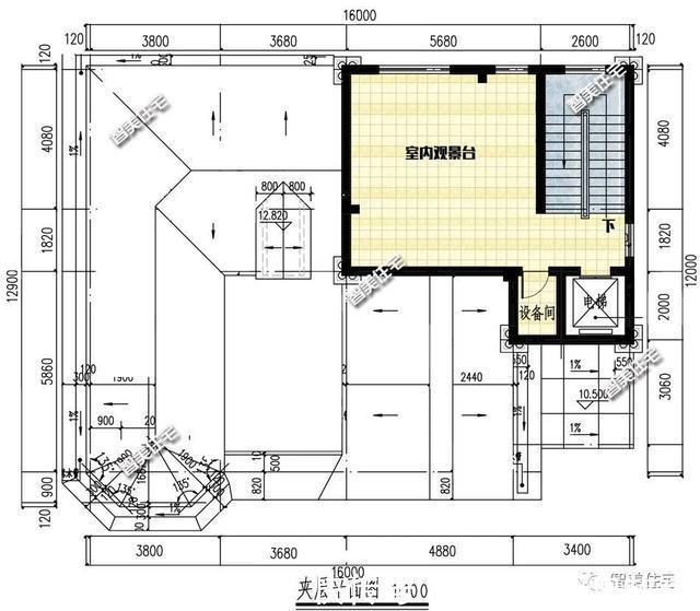
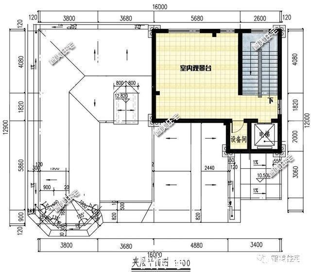
在农村建一栋房子,如果普通一点的十几万就能做起来,我想应该家家户户都出得起这个钱,但是如果要在老家盖一栋豪宅,这还真不是每个人都能办得到的!在农村要盖一栋造型比较豪华的别墅,五十万以上是要准备好的,所以我们可以直接从一户家庭的住宅就能看出他的财力情况。现在在农村盖别墅的人很多,我们无论走到哪里都能看到一些整的很漂亮的各种洋房,因为大家现在生活条件都不差,看到别人家房子盖得那么漂亮,自然也不愿意自家的房子看起来差别太大,如果太豪华的整不起,那就整一个稍微简单一点的,很多的一层两层小别墅也可以特别精致。两栋很气派的别墅,如果你有盖豪宅的打算,那我肯定给你推荐这两款!第一栋尺寸不小,预算多的请进!面宽16米,进深13.8米。
室内三间卧室都是带独卫的,有一个棋牌室,二层五个卧室,带电梯设计的,三层一间套卧,剩余的很多空间都是室内休闲娱乐用的,室外配有八角凉亭。



第二栋带八角窗设计的别墅,面宽14.8米,进深11.3米。
一层很大一部分空间拿来做了堂屋,有采光好的挑空客厅,还有旋转楼梯,二层三间卧室,三层三个卧室,配休闲露台。


我们有什么样的经济基础,内心肯定很清楚,但是我们不仅自己要清楚,还想要让别人看到我们过得很好,这算是一种分享,也算是一种炫耀吧!反正是合法的,满足下自己的虚荣心有什么不好?
推荐阅读
- 楼市|房子降价对楼市而言反倒是件好事
- 购房置业|经济学家:老百姓60%的钱花在房子上很危险!网友:说得很对
- 房贷|“重启”拆迁?这2类房子或全拆重建,两类人受到影响
- 客厅|参观向华强和陈岚的豪宅,房子层高太矮了,住着不压抑吗
- 大门|房子大门万万不能朝这地方开,师傅看了摇头,怪不得我家越住越穷
- 购房置业|为什么买房不要买靠边的房子?这些问题要注意,开发商不会告诉你
- 炒房|房子有多难卖?三线城市炒房者:降价20万送车位都卖不掉
- 建房子|面宽11米, 进深16.5米的农村三层别墅, 前后有花院还带车库, 完美!
- 购房置业|买房界的黄金法则:好房子横向要宽、纵向要薄,多面朝南
- 卫生间|什么才叫好户型?来看看这5个标准,你家房子符不符合?
