建筑|三十万左右农村别墅,农村朋友也可以住上温馨的小别墅
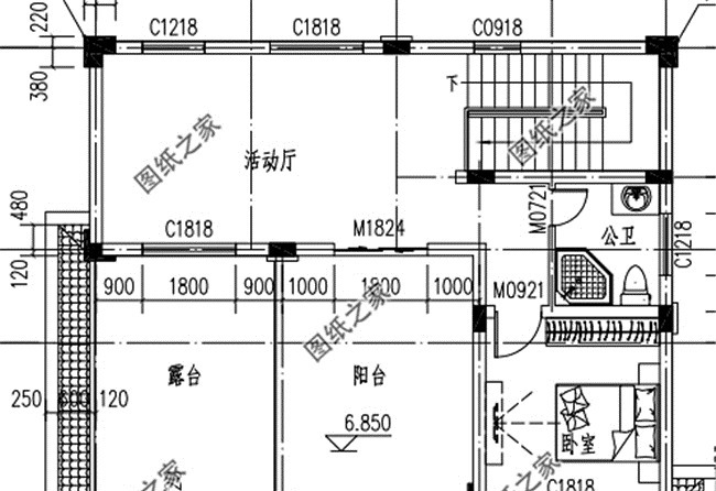
本户型为三层独栋带露台房屋设计图,含外观图片,本方案外观大气、美观,整体协调,户型布局合理,功能分区明确,二层以居住为主,三层以活动娱乐为主,三层带一个露天露台,一个不露台阳台,满足各种需求,设计师推荐户型。
占地面积:11.0m*10.0m,110平方米左右;建筑层高:三层;建筑高度:13.15米(含屋顶);设计功能:一 层:门厅、客厅、餐厅、厨房、主卧(带卫生间)、卫生间;
二 层:主卧(带卫生间、衣帽间)、卧室x3、阳台x2;
三 层:活动厅、卧室、卫生间、露台、大阳台(不露天);
欧式农村三层小别墅设计图,占地120平米,客厅中空,空间利用率高。
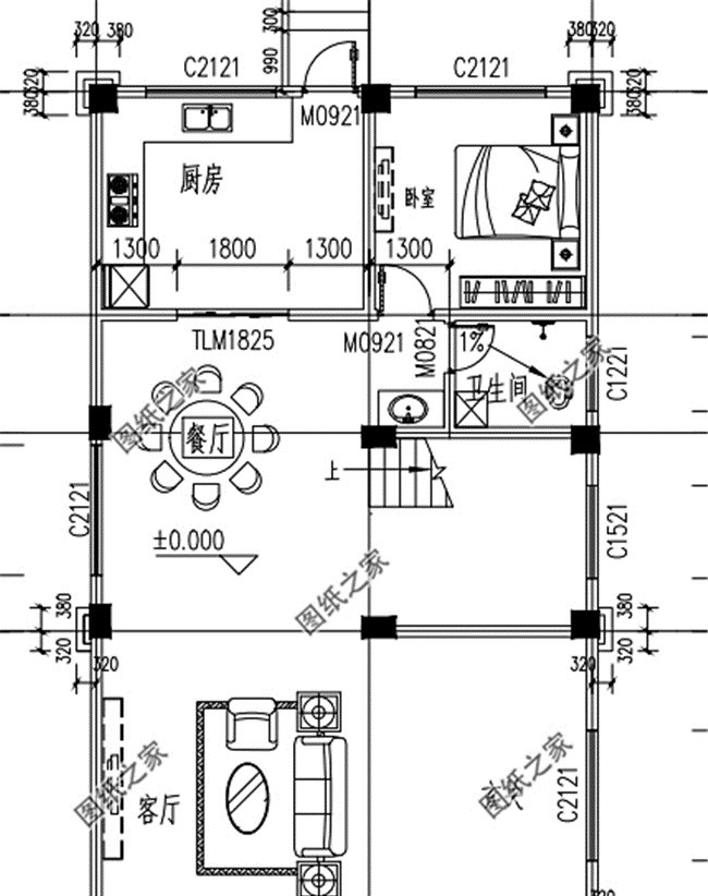
占地面积:8.0m*15.8m,一层占地120平方米左右;建筑层高:三层;建筑高度:13.6米(含屋顶);设计功能:一 层:客厅、厨房、餐厅、卧室、卫生间;
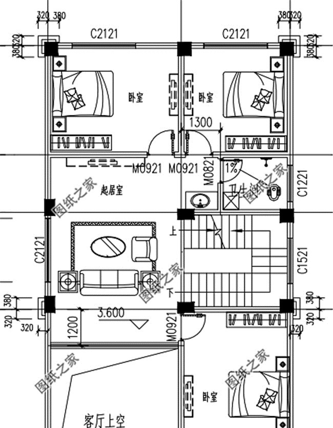
二 层:客厅上空、起居室、卧室x3、卫生间、阳台;
三 层:起居室、卧室x2、卫生间、大露台、凉亭;
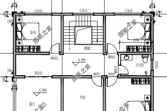
农村三层带地下室小楼房设计图,客厅中空,带书房,旋转楼梯,客厅区域比较宽敞好招待客人,二层主要就是营造一个舒适安静的休息环境,几乎都是卧室设计,三层除了室内休息和休闲空间,特配有室外休闲放松空间。
占地面积:12.2m*11.4m,一层占地130平方米左右;建筑层高:三层;建筑高度:12.7米(含屋顶);设计功能:地下室一 层:客厅、厨房、餐厅、卧室×2、卫生间;
二 层:客厅上空、客厅、卧室x3、卫生间、阳台;三 层:卧室x3、书房、卫生间、大露台;
以上就是农村三十万左右农村别墅图纸,喜欢想建房的朋友,欢迎收藏,下方留言讨论。
推荐阅读
- 建筑|小开间农村自建房,5款开间10米的农村别墅户型,好看又实用!
- 世茂|世茂璀璨天樾,整改仍不到位!大门、水系、门外建筑垃圾一片
- 招商蛇口|总建筑面积近15万平方米,连通地铁!浦东这里将新增一大型商业综合体
- 房地产行业|农村这3类自建房算违规建筑,将面临强制拆除!
- 历史建筑|唯一住房还不起月供怎么办?
- 购房置业|中南神箭原木建筑木方是怎样有效处理的
- 建筑装饰装修工程质量验收标准|2022年正在执行的装修标准有哪些
- 香港|高层建筑“被叫停”?2022年推出“新标准”,对此你怎么看?
- 建筑垃圾管理|首开鸿城实业被行政处罚,违反建筑垃圾管理规定
- 违章建筑|买房先看楼顶,没有凸出小房子坚决不买!问了物业大叔才明白!
