更上一层楼|87㎡小三居也有大开间,这才是家中的高级场面,简约而不简单
喜欢做“开放式”布局的家庭,现在是越来越多了,虽然还有很多人接受不了,但我觉得这种生活方式是给真正明白自己需求的人准备的,不要觉得这是一种跟风潮流,而是现在的年轻人更重视空间的互动性,真的是只有尝试过的人,才知道到底有多爽!
而本期,小编要给大家分享的便是一套把三居改两居的装修案例,其他空间都打通,别看睡觉的房间是少了一个,但收纳和视觉通透感扩大一倍不止,有了不输100㎡的即视感,不仅好看还更加实用。全屋也没有太多的复杂装饰,简单又干净,相信大家看过他家实景后,肯定会喜欢上这种格调。
设计说明
【 更上一层楼|87㎡小三居也有大开间,这才是家中的高级场面,简约而不简单】
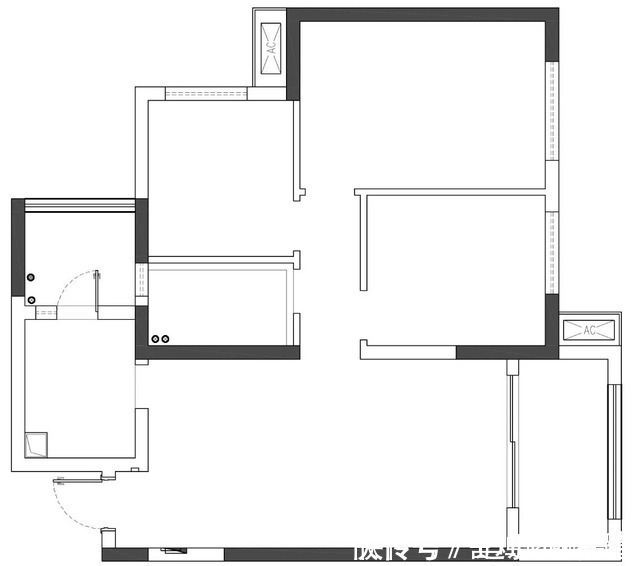
这是一套使用面积87㎡普通住宅,原户型有三间卧室,进门就客餐厅,基本没有太多毛病,但房子的格局有以下几点与屋主需求不符合:
1.门口没有玄关区划分,一家人进屋之后的收纳难以解决。
2.厨房空间太小,采光和通风不佳,做饭不舒适。
3.客厅在房屋中的占比太小,面积缩水严重。
4.男主想要亲子空间和办公区域。
设计师结合屋主的需求,对房屋进行以下几点改造:
1.拆掉厨房和餐厅之间墙体,做开放式厨房,增加空间通透和采光。
2.打通客厅和阳台空间,将阳台纳入到室内,扩大客厅面积。
3.厨房空间和生活阳台打通,解决厨房采光、通风不佳的问题。
4.拆掉主卧紧邻的次卧,当作办公区和亲子空间。
餐厅和玄关设计

从这个角度看,入户区和厨餐厅尽收眼底墙,入户玄关至餐厅是一组到顶的收纳柜,同时满足玄关、餐厅的收纳储物需求,柜子中间是镂空设计,空间层次感增强,使用起来也十分方便。
餐厅是紧邻厨房,大理石的餐桌与白色柜门起到呼应作用,黑色细腿设计呼应着餐厅的造型边框,餐桌上方是两个钵盂形状的吊灯,一进门就被它所吸引住了,黄铜色精致又大气。
这是开灯的效果,深咖色背景墙顶部安装隐藏灯带、搭配四盏小筒灯和家具照明,解决了屋内采光不足的问题,营造出舒适明亮的用餐氛围,地面是铺的灰色地砖,耐脏又好打理,与整体的色系保持一致。
厨房设计
开放式厨房设计,保留玄关衔接的部分墙体,保护了厨房操作台的隐私,厨房的吊柜下方安装了灯具提升亮度。
吊柜侧面设计开放式的三层收纳,放一些瓶瓶罐罐,拿取很方便。洗菜盆是大单槽台下盆+抽拉水龙头组合,打扫清理可以无残留,颜值高质量还过硬。
客厅设计
横向看向整个客餐厅,整体是选择地板和地砖拼接,加上电视背景墙镂空设计划分不同功能区域,电视机旁原木色立柜和地台一体化设计,弱化了柜体的存在感,增加了客厅收纳能力。
推荐阅读
- 屋主|56㎡小户型老房改造,小而美的设计!
- 现代风|168㎡现代风,带着浓郁的归属感与愉悦感
- 深色|155㎡简约风,承载着三代人的生活,不花哨让家务少一半
- 混淆感|146㎡北欧经典白色三居室,诠释令人心醉的优雅
- 饱和度|173㎡轻奢新中式,古典和现代的碰撞,唯美浪漫!
- 小钱|游点好笑!收手机的新方式,一抓一个准!这老师怕是柯南看多了?
- 背景墙|97㎡现代风,以时尚打造空间,以新颖突出特点
- 地板|160㎡四居室,玄关比我家卧室都大,这才是真正的低调奢华有内涵
- 公示|一处体育中心项目、一处小型口袋公园!市北两项目规划公示,配套升级
- 碧桂园|小城市的房住不炒,遇上返乡置业
